Lõunamaa projekt, ehk lausa kodune.
-
Tavalugeja
- Ehitusveteran

- Postitusi: 1713
- Liitunud: 24 Sept 2014, 19:26
- On tänanud: 101 korda
- On tänatud: 54 korda
Lõunamaa projekt, ehk lausa kodune.
Lugemata postitus Postitas Tavalugeja »
....
-
Tavalugeja
- Ehitusveteran

- Postitusi: 1713
- Liitunud: 24 Sept 2014, 19:26
- On tänanud: 101 korda
- On tänatud: 54 korda
Re: Lõunamaa projekt, ehk lausa kodune.
Lugemata postitus Postitas Tavalugeja »
-
A23
- Ehitusveteran

- Postitusi: 1970
- Liitunud: 05 Mär 2023, 01:06
- On tänanud: 25 korda
- On tänatud: 60 korda
Re: Lõunamaa projekt, ehk lausa kodune.
Lugemata postitus Postitas A23 »
Ikka tekitab huvi!Tavalugeja kirjutas: 30 Dets 2024, 17:48 Oleks teadnud, et huvi üldse ei tekita, poleks siin seda näidanud. Ise tean, et pidevalt selliste kasinate "miniuniversaalide" kohta küsitakse.
- kaua ahi soe seisab?
- kui suurt ruumi (hinnanguliselt) suudaks kütta?
- mis on suitsugaasi väljundtemp?
- mis on kogu kupatuse kaal?
- kas see ülemine "kollase" uksega on praeahi?
- kas sisemusest pilte, lõikeid oleks võimalik saada?
(Kaalun ise ka ühe soemüüri või ahjukesega "kätt proovida". Vbl järgmine suvi võtan ses suhtes miskit ette.
Kas oskad mõnda teemakohast raamatut soovitada?)
-
Tavalugeja
- Ehitusveteran

- Postitusi: 1713
- Liitunud: 24 Sept 2014, 19:26
- On tänanud: 101 korda
- On tänatud: 54 korda
Re: Lõunamaa projekt, ehk lausa kodune.
Lugemata postitus Postitas Tavalugeja »
Sooja annab kuni 8 tundi, ehk abiks hommikuni.
Ruumi suurust pole võimalik määrata, kuna see sõltub eelkõige ruumi soojapidavusest. Mõeldud aga on ikka väikse ruumi soojusallikana või siis moodsalt, lisakütteks.
Suitsugaasi max. väljund ca 200.
Kaal ca 700 kg.
Alumine on suht massiivne, aga väike kolle, ülemine küpsetusahi 3 cm paksustest plaatidest.
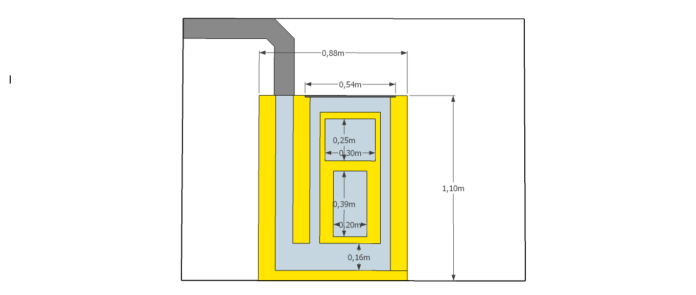
Sisemusest kõik algab ja ühe algse variandi joonise julgen siin avaldada. Hiljem "peenhäälestan" selle ka siin, mis puudutab minu konkreetset tootmisse tulevat isendit. Tegemist Soome tüüpi ahju mugandusega.
Teemakohased raamatud meil puuduvad. Soovitan kõigile, juba aastaid, https://www.mha-net.org/
Nüüd ka fb-s https://www.facebook.com/groups/262366228291809
Head kuuma aastavahetust!
-
võhik
- Ehitusguru

- Postitusi: 725
- Liitunud: 01 Jaan 2010, 11:54
- On tänanud: 2 korda
- On tänatud: 17 korda
Re: Lõunamaa projekt, ehk lausa kodune.
Lugemata postitus Postitas võhik »
Kas selle lõunamaa-aretuse suitsu saaks ka tagant otse soemüüri lasta? Et toru jalus ei oleks?
-
aero
- Ehituspenskar

- Postitusi: 2112
- Liitunud: 27 Mai 2010, 10:40
- On tänanud: 86 korda
- On tänatud: 86 korda
Re: Lõunamaa projekt, ehk lausa kodune.
Lugemata postitus Postitas aero »
-
Tavalugeja
- Ehitusveteran

- Postitusi: 1713
- Liitunud: 24 Sept 2014, 19:26
- On tänanud: 101 korda
- On tänatud: 54 korda
Re: Lõunamaa projekt, ehk lausa kodune.
Lugemata postitus Postitas Tavalugeja »
See projekt on lõpuni individuaalne, ehk kõik on kalkuleeritud vastavalt sellele projektile.võhik kirjutas: 08 Jaan 2025, 22:12 Vanurid ehitasid pea 20 aastat tagasi saunamaja eesruumi (miski 30 m2) soemüüri mida kütab pisuke malmpliit.
Kas selle lõunamaa-aretuse suitsu saaks ka tagant otse soemüüri lasta? Et toru jalus ei oleks?
-
Tavalugeja
- Ehitusveteran

- Postitusi: 1713
- Liitunud: 24 Sept 2014, 19:26
- On tänanud: 101 korda
- On tänatud: 54 korda
Re: Lõunamaa projekt, ehk lausa kodune.
Lugemata postitus Postitas Tavalugeja »
Mitte oht, vaid fakt. Sama soemüüris.
-
võhik
- Ehitusguru

- Postitusi: 725
- Liitunud: 01 Jaan 2010, 11:54
- On tänanud: 2 korda
- On tänatud: 17 korda
Re: Lõunamaa projekt, ehk lausa kodune.
Lugemata postitus Postitas võhik »
Kui samasse korstnalõõri töötab enamasti saunakeris, mis ilmselt annab väga kuumi(?) gaase, siis kas see vahepealne saunatamimne sulatab/põletab tekkivat pigi vähemalt korstnalõõrist ära.. ?
-
Tavalugeja
- Ehitusveteran

- Postitusi: 1713
- Liitunud: 24 Sept 2014, 19:26
- On tänanud: 101 korda
- On tänatud: 54 korda
Re: Lõunamaa projekt, ehk lausa kodune.
Lugemata postitus Postitas Tavalugeja »
Ei pea kindlasti korstna otsa ronima. Mõõda näiteks peale 10 min. ja peale 30 min. korstnasse minevat temperatuuri. See peaks olema min. 150. Kui korsten on paari -kolme meerine jupp, siis piisab 100. Aga see on küll viimane piir. Need memuaarid, et ainult vanad meistrid oskasid ehitada nii, et korsnasse läks ainult külm õhk, need memuaarid on nüüd koos teadjatega surnud, nagu ka nende pigitatud korstnad.võhik kirjutas: 09 Jaan 2025, 21:56 Kui ma tahaks praeguse lahenduse suitsugaase korstna otsas mõõta, siis kas seda peaks tegema kogu kütmistsükli jooksul või kuskil keskel ?
Kui samasse korstnalõõri töötab enamasti saunakeris, mis ilmselt annab väga kuumi(?) gaase, siis kas see vahepealne saunatamimne sulatab/põletab tekkivat pigi vähemalt korstnalõõrist ära.. ?
-
A23
- Ehitusveteran

- Postitusi: 1970
- Liitunud: 05 Mär 2023, 01:06
- On tänanud: 25 korda
- On tänatud: 60 korda
Re: Lõunamaa projekt, ehk lausa kodune.
Lugemata postitus Postitas A23 »
Kas juba peale 10 min peaks olema 150° või piisab, kui 30 min pärast?Tavalugeja kirjutas: 10 Jaan 2025, 00:04Ei pea kindlasti korstna otsa ronima. Mõõda näiteks peale 10 min. ja peale 30 min. korstnasse minevat temperatuuri. See peaks olema min. 150. Kui korsten on paari -kolme meerine jupp, siis piisab 100. Aga see on küll viimane piir. Need memuaarid, et ainult vanad meistrid oskasid ehitada nii, et korsnasse läks ainult külm õhk, need memuaarid on nüüd koos teadjatega surnud, nagu ka nende pigitatud korstnad.võhik kirjutas: 09 Jaan 2025, 21:56 Kui ma tahaks praeguse lahenduse suitsugaase korstna otsas mõõta, siis kas seda peaks tegema kogu kütmistsükli jooksul või kuskil keskel ?
Kui samasse korstnalõõri töötab enamasti saunakeris, mis ilmselt annab väga kuumi(?) gaase, siis kas see vahepealne saunatamimne sulatab/põletab tekkivat pigi vähemalt korstnalõõrist ära.. ?
Kas nõue kehtib ühtmoodi nii kivikorstna kui metallkorstna korral?
-
Tavalugeja
- Ehitusveteran

- Postitusi: 1713
- Liitunud: 24 Sept 2014, 19:26
- On tänanud: 101 korda
- On tänatud: 54 korda
Re: Lõunamaa projekt, ehk lausa kodune.
Lugemata postitus Postitas Tavalugeja »
A23 kirjutas: 10 Jaan 2025, 07:22
Kas juba peale 10 min peaks olema 150° või piisab, kui 30 min pärast?
Kas nõue kehtib ühtmoodi nii kivikorstna kui metallkorstna korral?
Ega see nii ühene ei ole, et siis ja siit ja pole ka nõudeid. See selle teema projekt soemüüriga kindlasti ei sobi. Pole see teema.
-
Urmas
- autodidakt
- Postitusi: 13751
- Liitunud: 17 Apr 2009, 23:51
- On tänanud: 423 korda
- On tänatud: 459 korda
Re: Lõunamaa projekt, ehk lausa kodune.
Lugemata postitus Postitas Urmas »
https://majandus.postimees.ee/8414527/k ... -hingusele
-
Prill
- Ehitusveteran

- Postitusi: 1732
- Liitunud: 27 Veebr 2017, 10:36
- On tänanud: 7 korda
- On tänatud: 96 korda
Re: Lõunamaa projekt, ehk lausa kodune.
Lugemata postitus Postitas Prill »
See ei ole isegi enam uudis, pea kümmekond aastat tagasi oli kuskilt Discoveri pealt sari, kus huvilised ostsid oksjonikorras miskit mahajäetud kinnisvara ja vuntsisid ning arendasid nendest müügiväärset, kohati uhke villa mõõtu elamisi ja teenisid või lootsid teenida soliidset kasumit. Seal käis samuti läbi pidev kamina argument, kuidas olemasolev kamin lisab oluliselt väärtust, sest uusehitistele kaminate rajamine on keelatud - need kaminad mis on, neid võib renoveerida, remontida kasutada "igavesti" aga uusi juurde teha ei lubata.Urmas kirjutas: 12 Veebr 2026, 08:08 Vanas maailmas veel lubatakse, kuid selle artikli järgi ülemere uues maailmas kisub asi vaikselt hapuks minema.
Kuivemates piirkondades oli teemaks veepuudus ja sellega oli kord veel karmim, ole kui rikas tahad, vee kasutamine on haljastuses piiratud&keelatud, ja tagaõue muru kõrbeb nii miljonäril kui vaesemal rahval.
USA-ga on keeruline jah, kus meie jaoks justkui üks üldistatud "ühendriik" kõik end tegelikult osariigid vägagi erinevad nii klimaatiliselt, kultuuriliselt ja ka õiguslikult sh ka keskkonnakaitseliselt.
-
võhik
- Ehitusguru

- Postitusi: 725
- Liitunud: 01 Jaan 2010, 11:54
- On tänanud: 2 korda
- On tänatud: 17 korda
Re: Lõunamaa projekt, ehk lausa kodune.
Lugemata postitus Postitas võhik »
https://edition.cnn.com/2012/04/29/worl ... er-turbine
-
ping
- Ehituspenskar

- Postitusi: 6597
- Liitunud: 28 Jaan 2016, 10:35
- On tänanud: 120 korda
- On tänatud: 307 korda
Re: Lõunamaa projekt, ehk lausa kodune.
Lugemata postitus Postitas ping »
Ei ole midagi uut maailmas ja tõenäoliselt otsitakse lollikesi investeerima.võhik kirjutas: 12 Veebr 2026, 18:22 Vett saab ka ise toota ... iseasi kas selle aparaadi püstitamiseks luba antakse.
https://edition.cnn.com/2012/04/29/worl ... er-turbine
Soojast õhust saab vett suvalise kliimaseadmega ja PV paneelidega toota ning selleks ei pea poolemillist tuuliku masti püsti ajama.
-
A23
- Ehitusveteran

- Postitusi: 1970
- Liitunud: 05 Mär 2023, 01:06
- On tänanud: 25 korda
- On tänatud: 60 korda
Re: Lõunamaa projekt, ehk lausa kodune.
Lugemata postitus Postitas A23 »
-
rein113
- Ehitusveteran

- Postitusi: 1142
- Liitunud: 06 Apr 2009, 13:05
- Asukoht: Pärnu
- On tänanud: 57 korda
- On tänatud: 41 korda
Re: Lõunamaa projekt, ehk lausa kodune.
Lugemata postitus Postitas rein113 »
-
Tavalugeja
- Ehitusveteran

- Postitusi: 1713
- Liitunud: 24 Sept 2014, 19:26
- On tänanud: 101 korda
- On tänatud: 54 korda
Re: Lõunamaa projekt, ehk lausa kodune.
Lugemata postitus Postitas Tavalugeja »
-
Tavalugeja
- Ehitusveteran

- Postitusi: 1713
- Liitunud: 24 Sept 2014, 19:26
- On tänanud: 101 korda
- On tänatud: 54 korda
Re: Lõunamaa projekt, ehk lausa kodune.
Lugemata postitus Postitas Tavalugeja »
-
Urmas
- autodidakt
- Postitusi: 13751
- Liitunud: 17 Apr 2009, 23:51
- On tänanud: 423 korda
- On tänatud: 459 korda
Re: Lõunamaa projekt, ehk lausa kodune.
Lugemata postitus Postitas Urmas »
Mis seal vahet on, kas Tenerife või Ameerikamaa või Märjamaa, me kõik siin maamuna peal oleme üks suur pere.Tavalugeja kirjutas: 15 Veebr 2026, 00:17 Suudan vaid imetleda, kuhu minu Tenerife teema tassitud on.
-
Tavalugeja
- Ehitusveteran

- Postitusi: 1713
- Liitunud: 24 Sept 2014, 19:26
- On tänanud: 101 korda
- On tänatud: 54 korda
Re: Lõunamaa projekt, ehk lausa kodune.
Lugemata postitus Postitas Tavalugeja »
-
Tavalugeja
- Ehitusveteran

- Postitusi: 1713
- Liitunud: 24 Sept 2014, 19:26
- On tänanud: 101 korda
- On tänatud: 54 korda
Re: Lõunamaa projekt, ehk lausa kodune.
Lugemata postitus Postitas Tavalugeja »
Mine “Ahjud, kaminad, korstnad”
- Ehitusfoorum
- ↳ Üldfoorum
- ↳ Ahjud, kaminad, korstnad
- ↳ Aiad, väravad
- ↳ Aknad, uksed
- ↳ Betoon ja betoonitooted
- ↳ Ehitustööriistad
- ↳ Ehitusmaterjalid
- ↳ Elekter, elektriseadmed
- ↳ Energiamärgis ja energiaaudit
- ↳ Fassaadide arutelu
- ↳ Katused, laed
- ↳ Hüdroisolatsioon
- ↳ Kaevud
- ↳ Konstruktsioonid, seinad
- ↳ Küttesüsteemid
- ↳ Palkmajad
- ↳ Projekteerimine, projektid
- ↳ Põrandad
- ↳ Puit ja puidutooted
- ↳ Restaureerimine
- ↳ Seadusandlus
- ↳ Soojustus, isolatsioon
- ↳ Saunad, dussiruumid, vannitoad, sanitaartehnika
- ↳ Siseviimistlus, värvid, plaatimistööd
- ↳ Ventilatsioon
- ↳ Veevarustus, kanalisatsioon, käimlad
- ↳ Vundamendid
- ↳ Naljanurk
- ↳ Arhiiv
- Ärifoorumid
- ↳ Otsin tööd
- ↳ Pakun tööd
- ↳ Ostu-müügifoorum
- ↳ Annan/võtan rendile
- ↳ Hinnapäring