Toredad skeemid
-
kunn24
- Ehituspenskar

- Postitusi: 4688
- Liitunud: 11 Veebr 2018, 14:45
- On tänanud: 52 korda
- On tänatud: 159 korda
Toredad skeemid
Lugemata postitus Postitas kunn24 »
Alustaks näiteks siseneva PEN-i ühendusest. Skeemi järgi ühendub N-ile. Peaks aga kuhu? Siis, kus on PE ja N-i ühenduspunkt? Ok, vb olla teisel lehel. Kuid loogiliselt peaks olema TN-C sisestuse juures. 40 A liini taga on 52 kW. Nunuh.
Liigpingekaitse (piiriku) ühine juht ühendub kuhu? Aga peaks?
Rikkevoolukaitsete skeemid on ikka eriline tase jne jne.
-
Küülaline
- Ehituspenskar

- Postitusi: 6776
- Liitunud: 02 Veebr 2009, 22:46
- On tänanud: 125 korda
- On tänatud: 154 korda
Re: Toredad skeemid
Lugemata postitus Postitas Küülaline »
Liigpingepiirikute tähistus peaks olema tüüp T1+T2 (mitte klass ja võiks ka parameetrid olla).
RVK kummaline tingmärk ei ole otseselt viga.
Huvitav, mis aasta projekt see on, kui kaablid on PPJ?
-
EH.INS.
- Ehituspenskar

- Postitusi: 4241
- Liitunud: 29 Juul 2024, 10:56
- On tänanud: 1 korda
- On tänatud: 96 korda
Re: Toredad skeemid
Lugemata postitus Postitas EH.INS. »
Küsige T25 käest - ta sõbral on kohe teile õige vastus anda - kõik mis te siin arutate on ju täielik jama...
-
Urmas
- autodidakt
- Postitusi: 13818
- Liitunud: 17 Apr 2009, 23:51
- On tänanud: 426 korda
- On tänatud: 460 korda
Re: Toredad skeemid
Lugemata postitus Postitas Urmas »
EH.INS. kirjutas: 23 Mai 2025, 22:56 Mis te mehed siin jama ajate???
Küsige T25 käest - ta sõbral on kohe teile õige vastus anda - kõik mis te siin arutate on ju täielik jama...
-
kunn24
- Ehituspenskar

- Postitusi: 4688
- Liitunud: 11 Veebr 2018, 14:45
- On tänanud: 52 korda
- On tänatud: 159 korda
Re: Toredad skeemid
Lugemata postitus Postitas kunn24 »
Räme viga, kuna N on järjest katkestatud jne. Ei ole töötav skeem üldse, selle järgi reaalselt ehitada ei saa. Projekti "inseneri" käekiri oli selline, et kilbis olid ca 25 mm2 jaotuskaablid.RVK kummaline tingmärk ei ole otseselt viga.
Huvitav, mis aasta projekt see on, kui kaablid on PPJ?
Aastast kuskil 2010.
Trollimistele vahepalaks toimiv kilbiskeem (aastast 2013), RVK on õigesti ja toimivalt lahendatud, lisaks 1-f tarbijad jagatud kenasti faasidele, arvutatud pingelangud:
-
Küülaline
- Ehituspenskar

- Postitusi: 6776
- Liitunud: 02 Veebr 2009, 22:46
- On tänanud: 125 korda
- On tänatud: 154 korda
Re: Toredad skeemid
Lugemata postitus Postitas Küülaline »
Kui kilbi ehitaja samasugune tegelane on siis küll. Ma arvan, et see projekteerija tahtis eriliselt tähelepanu juhtida, et N ka läbi RVK läheb, ainult natuke ebaõnnestunult.kunn24 kirjutas: 24 Mai 2025, 00:52 N on järjest katkestatud ... selle järgi reaalselt ehitada ei saa
Sellel teisel skeemil on see viga, et ühefaasilised tarbijad on 4-pooluselise RVK taga, mis on ebasoovitav.
-
kunn24
- Ehituspenskar

- Postitusi: 4688
- Liitunud: 11 Veebr 2018, 14:45
- On tänanud: 52 korda
- On tänatud: 159 korda
Re: Toredad skeemid
Lugemata postitus Postitas kunn24 »
-
kunn24
- Ehituspenskar

- Postitusi: 4688
- Liitunud: 11 Veebr 2018, 14:45
- On tänanud: 52 korda
- On tänatud: 159 korda
Re: Toredad skeemid
Lugemata postitus Postitas kunn24 »
-
Küülaline
- Ehituspenskar

- Postitusi: 6776
- Liitunud: 02 Veebr 2009, 22:46
- On tänanud: 125 korda
- On tänatud: 154 korda
Re: Toredad skeemid
Lugemata postitus Postitas Küülaline »
Ja jälle muidugi see, mille vastu mina võitlen - neljapooluseline RVK ühefaasiliste gruppide ees.
-
Äärenurk
- Ehitusguru

- Postitusi: 906
- Liitunud: 22 Veebr 2016, 15:46
- On tänanud: 1 korda
- On tänatud: 34 korda
Re: Toredad skeemid
Lugemata postitus Postitas Äärenurk »
Eelistad kombikaitsmeid?Küülaline kirjutas: 17 Juun 2025, 14:42 Olgu slaavi või mistahes päritolu, isegi GoogleTranslate peaks ju aitama, kui tahtmist on. Aga see auk on muidugi viga, mis auditit ei tohiks läbida.
Ja jälle muidugi see, mille vastu mina võitlen - neljapooluseline RVK ühefaasiliste gruppide ees.
-
Küülaline
- Ehituspenskar

- Postitusi: 6776
- Liitunud: 02 Veebr 2009, 22:46
- On tänanud: 125 korda
- On tänatud: 154 korda
Re: Toredad skeemid
Lugemata postitus Postitas Küülaline »
Üldiselt jah, siis on nagu muiste - igal grupil oma kaitse. Aga miks ka mitte igale faasile kahepooluseline RVK ja nende taga siis grupikaitsed.
-
trebla
- Ehituspenskar

- Postitusi: 3456
- Liitunud: 04 Aug 2009, 00:27
- On tänanud: 6 korda
- On tänatud: 69 korda
Re: Toredad skeemid
Lugemata postitus Postitas trebla »
-
dumbuser
- Ehituspenskar

- Postitusi: 3850
- Liitunud: 08 Jaan 2008, 23:08
- On tänanud: 11 korda
- On tänatud: 87 korda
Re: Toredad skeemid
Lugemata postitus Postitas dumbuser »
Mul pole aimugi kes selle kirja sinna soperdas aga kurat loe rsk juhendit ja saa teada, et päriselt on ka olemas võimalus kogu see plära väiksemate tähtedega teha ja siis mahub ära.Küülaline kirjutas: 17 Juun 2025, 14:42 Olgu slaavi või mistahes päritolu, isegi GoogleTranslate peaks ju aitama, kui tahtmist on. Aga see auk on muidugi viga, mis auditit ei tohiks läbida.
Ja jälle muidugi see, mille vastu mina võitlen - neljapooluseline RVK ühefaasiliste gruppide ees.
RVK kohta aga ei oska öelda. Vabalt võib olla, et tegijal oli räigelt raha vaja ja klient oli ka kooner ja siis siuke asi käiku läks, sest see on kõige odavam. Ainult üks RVK. Aga võib ka olla, et tegijal on null kogemst ja ega ta väga aru ka ei saa milleks see RVK üleüldse seal on.
Mul oli paar nädalat tagasi juhus kus tuli DALI juhtimisega lambile panna push-dim, sest DALI on üsna kirves ja täiesti mõttetu asi kuskil korteris üksiku lambina ja vist kõik DALI dimmerid saavad ka push-dim teemaga ilma mingite süümekateta hakkama. Juhiti seda lampi aga kahe tavalise veksliga. No kui raske siis on kahe veksli asemel panna vedrulüliti ? Sai kokku lepitud, et tööks läheb reede lõunal. Enne kündsin poodi ostsin vajalikud lülitid (sest sobivat vedru ma sinna ei leidnud ja lüliti hind oli kah kõva 6 raha tk) ja siis hakkasin peale. Esimene lüliti oli nii nagu veksel ikka, kolm otsa kõik eri värvi isolatsiooniga. Isegi ko/ro soont ei olnud, et noh tundus nagu päris. Teise lüliti juures läks mõte sassi. Et miks kurat seal neli otsa on ? No vbl on mingi rats tehtud. Mitu aega mõtlesin, et mis krdi asi see on. Ja lõpuks ei jäänud muud üle kui võtsin kõik otsad lahti ja mõõtmisega sain aru, et see on ristlüliti. Mis aga tähendas, et seal on vähemal üks veksel kuskil veel kuigi mulle raiuti nagu lapsele, et selle lambi jaoks on ainult kaks lüliti ja mitte millimeetritki enam. Kuna igasugu pedaale ja kange oli lahedalt siis läks õige asja leidmiseni pisut aega. Napilt oleksin ka hakanud kaablit generaatoriga taga jama. Õnneks oli pood veel lahti ja ma sain ka kolmanda lüliti tuua. Joppima ajas küll, sest see pood oli ainuke mis pakkus kohapeal kohe JUNG'i impulsslülitit (aga vbl ma lihtsalt ei osanud otsida) ning poe ja paigalduskoha vahet sõitmiseks läks reede õhtul umbes 40 minutit. Aga ... Ei uusarenduse värske omanik ega ka sisekujundaja ei teadnud mitte midagi sellest kolmandast lülitist ja kui ma sellest rääkisin siis enne oma silmaga veendumist peeti mind lihtsalt lollakaks. Vabandust kui nüüd teemast väga mööda läks.
-
kunn24
- Ehituspenskar

- Postitusi: 4688
- Liitunud: 11 Veebr 2018, 14:45
- On tänanud: 52 korda
- On tänatud: 159 korda
Re: Toredad skeemid
Lugemata postitus Postitas kunn24 »
-
ping
- Ehituspenskar

- Postitusi: 6647
- Liitunud: 28 Jaan 2016, 10:35
- On tänanud: 120 korda
- On tänatud: 310 korda
Re: Toredad skeemid
Lugemata postitus Postitas ping »
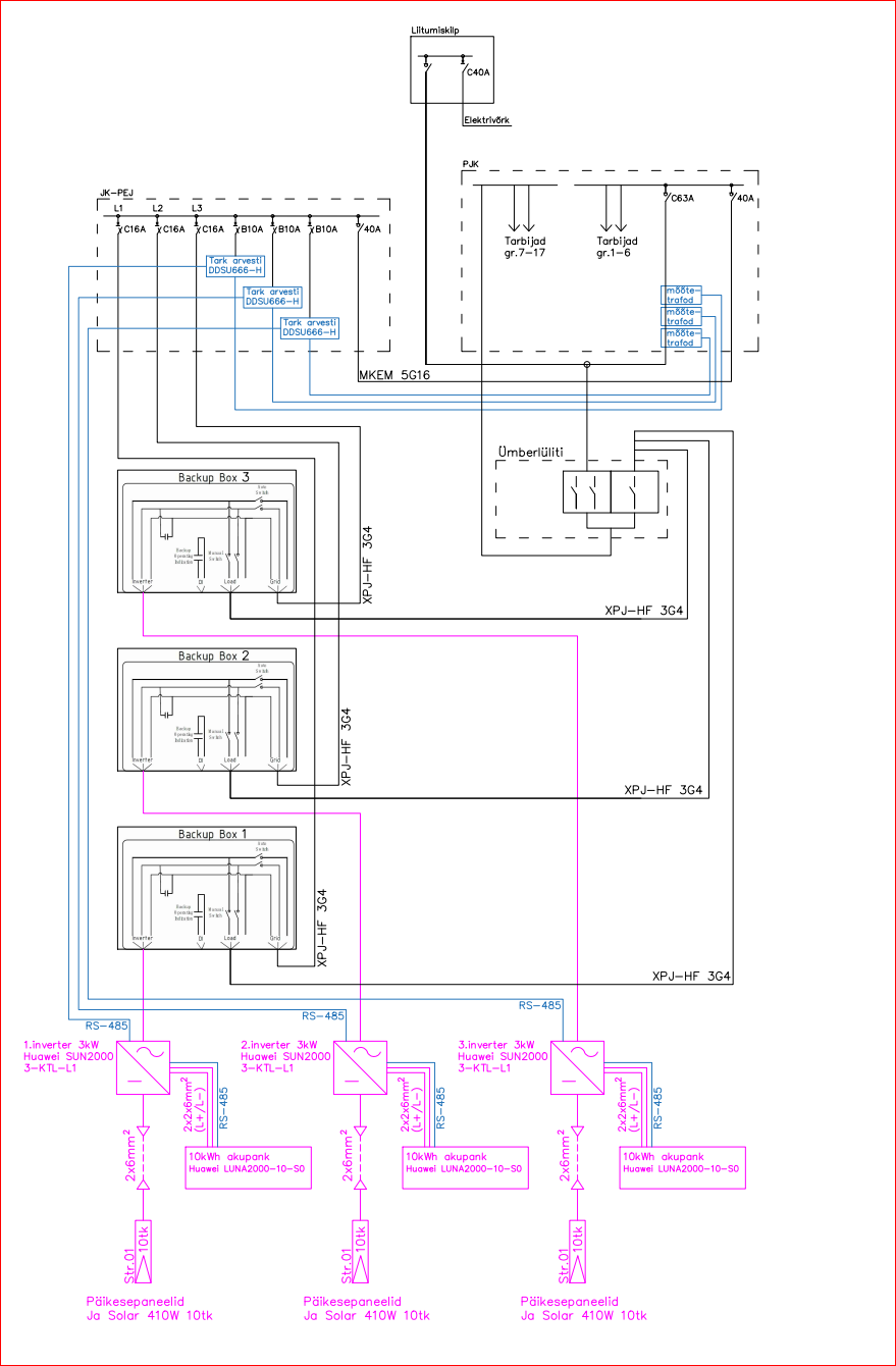
Aga võibolla oli projekt tehtud 5-10 aastat varem ja hankeprotsess võttis ka omajagu aega?kunn24 kirjutas: 21 Juul 2025, 21:46 Avalikus kohas peasissekäigu kõrval avalikuks imetlemiseks selline ilus asi ....
... Asi on ehitatud perioodil aug- nov 2023, siis olid juba olemas ilusti ebasümm koormusega hübriid 3-f inverterid, ....
Ehitama peab ju projekti järgi.
-
kunn24
- Ehituspenskar

- Postitusi: 4688
- Liitunud: 11 Veebr 2018, 14:45
- On tänanud: 52 korda
- On tänatud: 159 korda
Re: Toredad skeemid
Lugemata postitus Postitas kunn24 »
Ma lubasin konkreetselt mitte viidata- vastasel korral lisaksin ehitusloa numbri ja hoone registrikoodi. Teostusjooniselt jätsin samuti kirjanurga ära. Rõhutan veel kord, selle joonise järgi asi ei saa õigesti toimida. Ja milleks need jämesoolikad ümber kaablite? Ehitusloa kooskõlastusel on PA poolt lahmitud: "Potensiaalselt (võimalikult) pinge alla jäävad kaablid peavad olema kogu nende kulgemise tee jooksul olema paigutatud kas kõrisse, renni või kaabliredelisse"- ehe näide, kuidas rumal ametnik ja ära ehmatanud ehitaja on "koostöös" jõudnud "tulemusele".
Mine “Elekter, elektriseadmed”
- Ehitusfoorum
- ↳ Üldfoorum
- ↳ Ahjud, kaminad, korstnad
- ↳ Aiad, väravad
- ↳ Aknad, uksed
- ↳ Betoon ja betoonitooted
- ↳ Ehitustööriistad
- ↳ Ehitusmaterjalid
- ↳ Elekter, elektriseadmed
- ↳ Energiamärgis ja energiaaudit
- ↳ Fassaadide arutelu
- ↳ Katused, laed
- ↳ Hüdroisolatsioon
- ↳ Kaevud
- ↳ Konstruktsioonid, seinad
- ↳ Küttesüsteemid
- ↳ Palkmajad
- ↳ Projekteerimine, projektid
- ↳ Põrandad
- ↳ Puit ja puidutooted
- ↳ Restaureerimine
- ↳ Seadusandlus
- ↳ Soojustus, isolatsioon
- ↳ Saunad, dussiruumid, vannitoad, sanitaartehnika
- ↳ Siseviimistlus, värvid, plaatimistööd
- ↳ Ventilatsioon
- ↳ Veevarustus, kanalisatsioon, käimlad
- ↳ Vundamendid
- ↳ Naljanurk
- ↳ Arhiiv
- Ärifoorumid
- ↳ Otsin tööd
- ↳ Pakun tööd
- ↳ Ostu-müügifoorum
- ↳ Annan/võtan rendile
- ↳ Hinnapäring