M: Männipuidust ÜMARPALKSAUN 4x5m

Ehitusmaterjali, toodete jne ost-müük
Foorumi reeglid
Ostmiskuulutuse korral lisage postituse teema ette täht O ja müümiskuulutuse korral täht M. Samuti, kui Te ei soovi enam müüa või osta, oleks soovitav informeerida Administraatorit, et ta saaks teema lukku panna. Kui soovite aga hoida oma ostu- või müügiteemat kõikide postituste eesotsas Kleepsuna, siis on see võimalik tasulise teenusena. Huvi korral saata privaatsõnum kasutajale Kristel
mannimaja
Uus kasutaja
Uus kasutaja
Postitusi: 38
Liitunud: 08 Sept 2017, 18:33

M: Männipuidust ÜMARPALKSAUN 4x5m

Lugemata postitus Postitas mannimaja »

ÜMARPALKSAUN 4600€

Hind sisaldab käibemaksu ja transporti ostja juurde.(ainult palkosa hind+joonised)
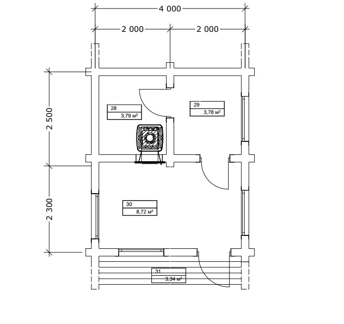
Müüa loomuliku niiskusega 180 millimeetrisest männipuidust masinfreesitud ümarpalksauna mõõtudega 4x5 meetrit.
Hoone koosneb leili- ja pesuruumist, eesruumist ning terassist. Palgid liinilt tulles koheselt värvitu ja lõhnatu antiseptikuga töödeldud.
Võimalik väga heade hindadega tellida ka kogu ülejäänud vajaminev puitmaterjal(sarikakomplekt, põranda- ja voodrilauad jne) ning seinasoojustus.
Vajadusel aitame ka püstitusega.

ROHKEM INFOT:
+372 50 16504
peeter.pung@mail.ee
aili2.jpg
aili1.jpg
aili.jpg
Vasta