Sauna renoveerimine

saunad, santehnika, boilerid jne
Ecu
Uus kasutaja
Uus kasutaja
Postitusi: 28
Liitunud: 01 Nov 2006, 22:06

Sauna renoveerimine

Lugemata postitus Postitas Ecu »

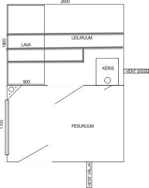
Sai plaani võetud 30 aastat vana sauna renoveerimine. Seoses sellega kuulaks ära foorumi kasutajate soovitused ja idee ning jagaks enda omasid.
Sauna plaan:
Pilt

Pildid:
Pilt
Pilt
Pilt
Pilt
Pilt
Ecu
Uus kasutaja
Uus kasutaja
Postitusi: 28
Liitunud: 01 Nov 2006, 22:06

Re: Sauna renoveerimine

Lugemata postitus Postitas Ecu »

Siiani puudus saunas igasugune ventilatsioon. Minu idee oli lahendada see selliselt:
Pilt
Sissetulev õhk plaan tuua leiliruumi kerise kohale just laealt mitte põranda lähedalt ja väljatõmme pesuruumist laealt. Kahe ruumi vaheline õhuvahetus hakkaks toimuma uksealla jäätavast vahest. Minu arvates ei ole sissetulevat õhku hea tuua antud lahenduse puhul alt kerise juurest, sest siis ei segune õhk piisavalt ära ja põrandaläheduses jääb õhk külmaks. Väljatõmme plaanis teha sund, kuid mis te arvate kas peaks tegema ka sissepuhumise sund või piisab kui väljatõmme on sund ja imeb sellega piisavalt õhku sisse? Kas oleks mõistlik sissetulevale õhule vahele panna ka klapp, et mingites olukordades ei hakkaks hoopis soe õhk sealt välja liikuma ja millise lahendusega teie soovitaksite teha sulgemine? Kui saun on ära kuivanud siis oleks mõistlik õhuvahetus peatada.
Ecu
Uus kasutaja
Uus kasutaja
Postitusi: 28
Liitunud: 01 Nov 2006, 22:06

Re: Sauna renoveerimine

Lugemata postitus Postitas Ecu »

Kaalun ka kerise väljavahetamist, kuid kui vaadata poodides müüdavaid keriseid siis ei ole vist sellel mõtet. Praegune keris on vastu pidanud 30 aastat ja tundub, et peab veel, kuna valmistatud korralikust paksust metallist.
Kasutaja avatar
tartuott
Korralik postitaja
Korralik postitaja
Postitusi: 127
Liitunud: 25 Veebr 2006, 21:50
Asukoht: tartu
On tänatud: 1 korda
Kontakt:

Re: Sauna renoveerimine

Lugemata postitus Postitas tartuott »

Targem oleks sul lugeda mõni saunaehitus raamat läbi, foorumis on ka varem ventilatsioonist räägitud.
Lisan Harvia kodulehel kirjutatud teksti. Vaata sealt pilte ja uusi keriseid, omale paigaldasin puuküttega Harvia Legendi ja elektriküttega Kivi. Võid minu kodulehelt ka vaadata Kungla tänavas valminud sauna pilte.
Saunaruumi ventilatsioon
Gravitatsioon-õhuväljatõmme (joonis 5)
A. Värske õhu sisselaskeava peab asuma kerise
juures põranda lähedal ja
B. selle väljavool peab asuma kerisest võimalikult
kaugel lae lähedal. Keris ise tagab tõhusa õhuringluse,
laealuse ava eesmärgiks on saunaruumist
saunaskäigu järel niiskuse eemaldamine.
Mehaaniline õhu väljatõmme (joonis 6)
A. Värske õhu sisselaskeava peab asuma umbes
500 mm kerisest kõrgemal ja
B. väljavool peab asuma põranda lähedal, näiteks
pingi all.
Jõudu tööle!
www.raumbad.ee Raumbad, kõik jutud vannitubadest.
Kalvis
Ehituspenskar
Ehituspenskar
Postitusi: 11628
Liitunud: 03 Veebr 2008, 14:02
On tänanud: 4 korda
On tänatud: 336 korda

Re: Sauna renoveerimine

Lugemata postitus Postitas Kalvis »

Keris ise on OK ja see võib isegi jääda. Põrandad soovitav põrandaküttega ja plaatida, sama seintega, saad neist õudsatest puurestidest lahti. Kanalitorule võiks kipsnurga ümber teha ja plaatida aga võib ka sellise kavalama äravõetava kesta ümber teha. Lava võiks ka L kujuline olla.
Ventilatsiooni äratõmme tehakse mõlemasse ruumi. Vajadusel saad pesuruumi ripplae sisse peita. Ripplagi on hea ja lihtne lahendus pesuruumi jaoks. samas puukerisel ei ole nii oluline otse kerise juurde teha, kui on sundvent siis piisab, et laes puhub survega puukerisele peale. Äratõmme kaugemast nurgast. või siis kasvõi pesuruumi juurest (ava läbi seina)
Külaline
külaline

Re: Sauna renoveerimine

Lugemata postitus Postitas Külaline »

tartuott kirjutas:Targem oleks sul lugeda mõni saunaehitus raamat läbi, foorumis on ka varem ventilatsioonist räägitud.
Lisan Harvia kodulehel kirjutatud teksti. Vaata sealt pilte ja uusi keriseid, omale paigaldasin puuküttega Harvia Legendi ja elektriküttega Kivi. Võid minu kodulehelt ka vaadata Kungla tänavas valminud sauna pilte.
Saunaruumi ventilatsioon
Gravitatsioon-õhuväljatõmme (joonis 5)
A. Värske õhu sisselaskeava peab asuma kerise
juures põranda lähedal ja
B. selle väljavool peab asuma kerisest võimalikult
kaugel lae lähedal. Keris ise tagab tõhusa õhuringluse,
laealuse ava eesmärgiks on saunaruumist
saunaskäigu järel niiskuse eemaldamine.
Mehaaniline õhu väljatõmme (joonis 6)
A. Värske õhu sisselaskeava peab asuma umbes
500 mm kerisest kõrgemal ja
B. väljavool peab asuma põranda lähedal, näiteks
pingi all.
Jõudu tööle!

Olen neid soovitusi lugenud ja neist täitsa teadlik. Kuid püüan ka ise kaasa mõelda ja leida enda jaoks just sobivama lahenduse. Nagu näha oled Sa nende teemadega väga palju kokku puutnud, seega oskad kindlasti välja tuua miks ei tööta minu poolt välja toodud lahendus või mis probleemid seal tekkida võivad?
Probleem miks ma ei saa teha raamatu järgi seisneb selles, et väga keerukaks osutub leiliruumis kerisest kõige kaugemast nurgast väljatõmbe tekitamine. Teine teema on selles, et saun on väike. Kui teha sissepuhe ja võljatõmme nii leiliruumist kui pesuruumist siis tekib liiga suur õhuvahetus mis jahutab liiast kogu sauna.
Mina olen sedasi aru saanud, et see alt õhu sissetoomine on eriti tähtis kui kütmine toimub leiliruumist. Minul toimub see pesuruumist.
Ecu
Uus kasutaja
Uus kasutaja
Postitusi: 28
Liitunud: 01 Nov 2006, 22:06

Re: Sauna renoveerimine

Lugemata postitus Postitas Ecu »

Kalvis kirjutas:Keris ise on OK ja see võib isegi jääda. Põrandad soovitav põrandaküttega ja plaatida, sama seintega, saad neist õudsatest puurestidest lahti. Kanalitorule võiks kipsnurga ümber teha ja plaatida aga võib ka sellise kavalama äravõetava kesta ümber teha. Lava võiks ka L kujuline olla.
Ventilatsiooni äratõmme tehakse mõlemasse ruumi. Vajadusel saad pesuruumi ripplae sisse peita. Ripplagi on hea ja lihtne lahendus pesuruumi jaoks. samas puukerisel ei ole nii oluline otse kerise juurde teha, kui on sundvent siis piisab, et laes puhub survega puukerisele peale. Äratõmme kaugemast nurgast. või siis kasvõi pesuruumi juurest (ava läbi seina)
Põrandakütte võtan plaani. Külm põrand kuumas ruumis on ebameeldiv. Kanalitorule plaan ette teha 45 kraadi nurk ja duššisegisti sinna nurka panna. Kas see nurk oleks mõistlik teha kipsiga või kasutada mingit sobivamat materjali? Lava plaan jah teha L või siis pikemasse seina.
Kui teha ava leiliruumi ja pesuruumi vahele kas siis ei teki olukord kus hakkab õhk liiga palju ukse juurest ringlema? Ülevalt läheb kuum õhk leiliruumisti pesuruumi ja uksealt jookseb külm õhk leiliruumi. Mõlemad avad jääksid ühte seina.
Kalvis
Ehituspenskar
Ehituspenskar
Postitusi: 11628
Liitunud: 03 Veebr 2008, 14:02
On tänanud: 4 korda
On tänatud: 336 korda

Re: Sauna renoveerimine

Lugemata postitus Postitas Kalvis »

Mõtlesin, et pikendad väljatõmbe toru leiliruumi ja sinna klassikaline klapp otsa. Saunatamise ajal on leiliruumi oma kinni, lõpetamisel keerad lahti et niiskus välja saaks.
Dushinurk on maitse asi. Võid teha seniselt lahtiselt plaaditult, see annab täieliku veekindluse ruumi jaoks ja mida see dushinurk juurde annab?
Külaline
külaline

Re: Sauna renoveerimine

Lugemata postitus Postitas Külaline »

Kalvis kirjutas:Mõtlesin, et pikendad väljatõmbe toru leiliruumi ja sinna klassikaline klapp otsa. Saunatamise ajal on leiliruumi oma kinni, lõpetamisel keerad lahti et niiskus välja saaks.
Dushinurk on maitse asi. Võid teha seniselt lahtiselt plaaditult, see annab täieliku veekindluse ruumi jaoks ja mida see dushinurk juurde annab?
Plaanisin nii:
Pilt

Sellega saan torudest lahti.
Kasutaja avatar
laurit
Ehitusspets
Ehitusspets
Postitusi: 360
Liitunud: 13 Jaan 2010, 23:15
Asukoht: Harjumaa
On tänanud: 3 korda
On tänatud: 9 korda

Re: Sauna renoveerimine

Lugemata postitus Postitas laurit »

Vendist ei tea midagi, aga lava keeraks küll pikemasse seina ehk teeks isegi L-kujuline. Üle "ukse" leili visata võib suht tüütu olla.
Ecu
Uus kasutaja
Uus kasutaja
Postitusi: 28
Liitunud: 01 Nov 2006, 22:06

Re: Sauna renoveerimine

Lugemata postitus Postitas Ecu »

Pilt

Panin mõõdud ka juurde. L kujuliselt tehes ei saa ukseni teha, sest siis jääb uksest liikumisele ette.
Kasutaja avatar
laurit
Ehitusspets
Ehitusspets
Postitusi: 360
Liitunud: 13 Jaan 2010, 23:15
Asukoht: Harjumaa
On tänanud: 3 korda
On tänatud: 9 korda

Re: Sauna renoveerimine

Lugemata postitus Postitas laurit »

Teistpidi oleks lava ikkagi parem. Ei pea olema L-kujuline.
Manused
saun_mootudega.jpg
saun_mootudega.jpg (14.43 KiB) Vaadatud 8103 korda
Kasutaja avatar
tartuott
Korralik postitaja
Korralik postitaja
Postitusi: 127
Liitunud: 25 Veebr 2006, 21:50
Asukoht: tartu
On tänatud: 1 korda
Kontakt:

Re: Sauna renoveerimine

Lugemata postitus Postitas tartuott »

Kas tahad sanitaarset remonti või läheb ikka kapitaalremondiks?
Räägid renoveerimisest, täpsusta, ega see esimene uks ei ole välisuks? Mis ruumid siin seinte taga asuvad? Kas see saun asub I või 0 korrusel? Saunas peaks olema kolm ruumi- lava, pesuruum ja eesruum riietumiseks.
Vendiga on veel aega, ennem lammutaks seal. Ega sa seda vene malm püstakut ei taha kinni katta ja hiljem näed kurja vaeva ummistuste likvideerimisega, see on juba sul praegu seest kinni kasvanud. Pildilt järeldan, et üleval asub köök või vannituba.
Äkki müüriks esimese ukse kinni, teeks pesuruumist lavaruumi aknaga, see kole pikk slepe kaoks ära, kerise saaks korstna jalale lähemale. Lavaruumist saaks pesuruum ja sinna kust sa kavatsesid vendi kerisejuurde teha, lõhuks ukse eesruumi. Mis ruum sul seal seina taga on?
Veetorustik tuleb kõik välja vahetada ja kanalisatsioon läheb uus ja kui mõtled elektriküted panna, siis pead kogu põrandavalu ka üles lõhkuma, soojustama, korralikud trapid pesuruumi ja lavaruumi, uus vahesein jne.
Kui plaan on paigas, siis tuleb vendilahendus alles. Ja kui kõrge on lagi?
www.raumbad.ee Raumbad, kõik jutud vannitubadest.
Ecu
Uus kasutaja
Uus kasutaja
Postitusi: 28
Liitunud: 01 Nov 2006, 22:06

Re: Sauna renoveerimine

Lugemata postitus Postitas Ecu »

Lisasin eesruumi asetuse. Seinad ja uksekohad jätaksin paika. Veetorud ja kanalisatsioonitorud vahetan välja. Veetorud plaan viia võimalikult lae alla, et pärast lagi need ära varjaks.
Mis te arvate sellest kui pesuruumi paigaldada mullivann?

Pilt
Ecu
Uus kasutaja
Uus kasutaja
Postitusi: 28
Liitunud: 01 Nov 2006, 22:06

Re: Sauna renoveerimine

Lugemata postitus Postitas Ecu »

Millega ja kuidas oleks kõige mõistlikum vanu plaate seinast eemaldada?
Külaline
külaline

Re: Sauna renoveerimine

Lugemata postitus Postitas Külaline »

Trinitrotoluene :thumbsup:
Kasutaja avatar
tartuott
Korralik postitaja
Korralik postitaja
Postitusi: 127
Liitunud: 25 Veebr 2006, 21:50
Asukoht: tartu
On tänatud: 1 korda
Kontakt:

Re: Sauna renoveerimine

Lugemata postitus Postitas tartuott »

Ecu kirjutas:Millega ja kuidas oleks kõige mõistlikum vanu plaate seinast eemaldada?
Nüüd peaksid ühe maja renoveerimise raamatu läbi lugema. Vaata pilte.
www.raumbad.ee Raumbad, kõik jutud vannitubadest.
Ecu
Uus kasutaja
Uus kasutaja
Postitusi: 28
Liitunud: 01 Nov 2006, 22:06

Re: Sauna renoveerimine

Lugemata postitus Postitas Ecu »

Soovita mõnda raamatut mida minusugused peaksid lugema.
timburi
külaline

Re: Sauna renoveerimine

Lugemata postitus Postitas timburi »

Plaatide eemaldamine läbi aegade ühtemoodi käinud - mehhaaniliselt. Keegi ei ole mingit "tileoff" sprayd välja suutnud mõelda. Kes teeb seda haamri ja meisliga, kes kinnitab puurvasara külge vastava piigi/meisli või kes laenutab tööriista laenutusest kõige tõhusama aparaadi. Kaitseprillid ja tolmumask peaks igal juhul ees olema.
Kasutaja avatar
laurit
Ehitusspets
Ehitusspets
Postitusi: 360
Liitunud: 13 Jaan 2010, 23:15
Asukoht: Harjumaa
On tänanud: 3 korda
On tänatud: 9 korda

Re: Sauna renoveerimine

Lugemata postitus Postitas laurit »

Ecu kirjutas:Millega ja kuidas oleks kõige mõistlikum vanu plaate seinast eemaldada?
http://www.youtube.com/watch?feature=pl ... MLrAcW3lUw
Külaline
külaline

Re: Sauna renoveerimine

Lugemata postitus Postitas Külaline »

Kui jõud on taga, pole mõistust vaja!
Urmas
Külaline
külaline

Re: Sauna renoveerimine

Lugemata postitus Postitas Külaline »

Ma arvan, et viimasel seltsimehel kas oli tööriist poole töö ajal üles öelnud, või antigi talle katkine tööriist, või siis ei olnud elektrit. Kui seda aparaati mugavalt ja õigest kohast käes hoida ja niimoodi vehkida, siis peaks kasvõi kogemata sõrm päästiku peale minema, mis peaks nagu vihje andma edaspidiseks. Aga samas on see hea trenn.
Ecu
Uus kasutaja
Uus kasutaja
Postitusi: 28
Liitunud: 01 Nov 2006, 22:06

Re: Sauna renoveerimine

Lugemata postitus Postitas Ecu »

Sauna renoveerimine on vahepeal pikalt seisma jäänud. Kuid nüüd jälle aeg teemaga edasi liikuda. Vanade plaatide eemaldamiseks rentisin lapiku otsaka piikvasara millega õnnestus plaadid maha saada väga kerge vaevaga. Plaatide alune krohv oli kohati suht pude ja kohati tulid plaadid koos krohviga. Seega pidasin paremaks seintelt maha võtta kogu krohvi.
download/file.php?id=3659
Manused
DSC_0067[1].jpg
DSC_0067[1].jpg (12.05 KiB) Vaadatud 6932 korda
Ecu
Uus kasutaja
Uus kasutaja
Postitusi: 28
Liitunud: 01 Nov 2006, 22:06

Re: Sauna renoveerimine

Lugemata postitus Postitas Ecu »

Puukerise asemel otsustasin elektrikerise kasuks. Elektrikerisega tekib juurde rohkem ruumi ja on mugavam. Vaheseina otsustasin ka uue teha.
DSC_0082[2].jpg
DSC_0082[2].jpg (11.54 KiB) Vaadatud 6929 korda
Rein Sa
Ehitusspets
Ehitusspets
Postitusi: 445
Liitunud: 19 Aug 2013, 13:22
On tänanud: 3 korda
On tänatud: 10 korda

Re: Sauna renoveerimine

Lugemata postitus Postitas Rein Sa »

Kas nüüd, vastu talve, külmaga on õige aeg teha? Segud ei taha kuivada jne. Kui just soojus mujalt ei tule?
Vasta