Maja ehitushind.

siia käivad üldised teemad, mis teistesse foorumitesse ei sobi
Urmas
autodidakt
Postitusi: 13130
Liitunud: 17 Apr 2009, 23:51
On tänanud: 407 korda
On tänatud: 445 korda

Re: Maja ehitushind.

Lugemata postitus Postitas Urmas »

xxx111 kirjutas: 30 Apr 2021, 01:55 Kas enda tunnihind on arvutustes sees?
Näh, jälle tuli ära teemasse see enda vabast ajast tehtud töö tunnihind. ;) Kuidas arvestab mittetöötav penskar enda heaks tehtava töö tunnihinda? Miinusmärgiga? Maksab riigile vabatahtlikult lisaks sotsmakse? Mida penskar peaks maksude arvestamiseks aluseks võtma? ;) Aga kui kasutaja ping tunnihinne oligi 8x odavam, kuidas siis arvutus käib? Millise tunnihinde pakkumise me aluseks võtame? Turu keskmise? BS! Enda tarbeks, enda vabast ajast tegemisel ei saa arvutustesse sisse kirjutada mingit müütilist enda tööjõukulu tunnihinda. Vabast ajast diivanil vedelemise ja õlle võimisiganes joogi lürpimise eest ka keegi ei taha mulle millegipärast maksta. Keda kohtusse kaevata sellise ebaõigluse eest? Ja direktor sunnib mind vahel vabast ajast prügikotti välja viima, ilma et oleks kavatsenud mulle selle eest maksta. ;)
Sama olen ma jauranud mingis teemas oma metsast enda tarbeks küttepuude tegemisega. Mis oli ikkagi enda tehtud küttepuude hind/omahind? Kas reaalsed kulutused küttepuude tegemiseks enda tarbeks või hüpoteetiline müügihind? :scratch: Meie jaoks(meie pere+potentsiaalsed ämm-äi) tulid puud kätte reaalsete kulutuste hinnaga.
Küsisin hiljuti maaklerilt hindamist. Üks korter vajas korralikku remonti, teine korter 0-st renoveeritud ja m2 hind akti järgi oleks olnud mõlemil sama, sest pangalaenu saamiseks võetakse võetakse aluseks piirkonna müütiline keskmine. Teemaalgataja mõtlemine oleks nagu meie majandusmaastikul olevad turuliidritest pankuritel, kellel pole reaalsusega mingit pistmist, vaid tahetakse saada hüpoteetilist maksumust.
Mul on vist majandusliku loogikaga midagi väga nihu, täpselt ei tea. Kui mul oleks valiku vabadus, kas minna vabast ajast metsa puid tegema või tööle, kus teeniksin sama summa või rohkem, siis isegi oleks võimalus kaaluda, et kumb variant on mulle kasulikum.
NB! Ei võta materiaalset vastutust oma kommentaarides soovitatu kasutamise eest! ;)
jaguar3
Korralik postitaja
Korralik postitaja
Postitusi: 192
Liitunud: 21 Okt 2011, 13:40
On tänatud: 8 korda

Re: Maja ehitushind.

Lugemata postitus Postitas jaguar3 »

Urmas kirjutas: 30 Apr 2021, 02:35
jaguar3 kirjutas: 30 Apr 2021, 02:13 Täpsustame siis: garaažis ei ole "erilist" siseviimistlust ja keldris ei ole seda üldse. Puhas vuuk ja betoon.
Lugesin ka eelnevas kommentaaris kirjeldatud tööde mahtu. 100 000€ Maserati pealt saada allahindlust 500€-t? :scratch: Mul juba viskas filmi jooksma, kuidas sinu puhul hinnapakkumine käiks. Minuga ära arvesta! ;)
99500€ kogu projekt pakud Urmas? Teeme ära! Lõunad minu poolt.
xxx111
külaline

Re: Maja ehitushind.

Lugemata postitus Postitas xxx111 »

Tõepoolest?
Küsimusi tekitab enda töö arvestamine?
Milles õieti küsimus?
Enda VABA AJA võin ma sisustada ka muu tööga kui sel ajal endale ehitamine
Ning ilmselgelt olen produktiivsem enda spetsialiseeritud erialal
Põhilised aspektid:
1. Minu oskused jäävad kindlasti alla oma ala meistrile kes igapäevaselt tegeleb oma tööga
2. Minul kulub kindlasti rohkem aega kui meistril
3. Mul ON ODAVAM tegeleda samal ajal enda tööga (ja maksta palka) kui meister tegeleb oma tööga

Mul ei tuleks kordagi pähe jätta enda töö hinnavõrdlusest välja...
aero
Ehituspenskar
Ehituspenskar
Postitusi: 2109
Liitunud: 27 Mai 2010, 10:40
On tänanud: 86 korda
On tänatud: 86 korda

Re: Maja ehitushind.

Lugemata postitus Postitas aero »

Saan aru, et sina vabal ajal ehitada ei taha, teed pigem oma põhitööd. Hästi. Aga paljud inimesed - olles 8-10h päevas täie pingega põhitööd teinud, EI TAHA õhtud ja NV-d jälle sama asja teha. Mina ei tahaks. Tahan vaheldust. Hobiehitamine on paljudele "päevatöödele" päris ok vaheldus. Ise tehes tean täpselt, mis ja kuidas. Spetsialistidega on mul valdavalt hästi läinud aga on ka halbu kogemusi. Räägin praegu väiksematest mahtudest, mitte maja ehitamisest võtmeteni.
xxx111
külaline

Re: Maja ehitushind.

Lugemata postitus Postitas xxx111 »

Saan aru, et sina vabal ajal ehitada ei taha, teed pigem oma põhitööd.
Tahtmisega pole siin suurt pistmist - kaine ratsionaalne arvestus...
Juhul kui ehitamine on hobi siis on asjalood muidugi teisiti...
tabarabarap
Ehitusveteran
Ehitusveteran
Postitusi: 1502
Liitunud: 27 Mai 2019, 23:02
On tänanud: 6 korda
On tänatud: 64 korda

Re: Maja ehitushind.

Lugemata postitus Postitas tabarabarap »

xxx111 kirjutas: 30 Apr 2021, 09:08 Mul ei tuleks kordagi pähe jätta enda töö hinnavõrdlusest välja...
tegelikult selles põlvepealses eramajaehituses on asjad teisiti:

* enda palk on väiksem, kui ehitajal. See , et sinul on suurem on väga tubli tulemus, kahjuks oled 10% Eesti elanike seas selle tulemusega ja teised peavad asju lahendama teisiti
* ehitaja on tihti väga jäiga lähenemisega , kruvi keerab, naela samasse kohta ei löö ja iga detail vajab läbirääkimist samuti ei ole kõik ehitajad just väga nutikad ja oskavad vaid mingit kindlat liigutust
* aega võib ju mõne asjaga rohkem kuluda , kuid ei pruugi ja ka rohkem kulunud aeg võib osutuda odavamaks teenuse ostmisest

Ma saan muidugi su loogikast aru ja seda siin ka varem mingis teemas jahuti pikalt, aga reaalsuses on see, et inimesed ei suuda oma sissetulekuid suurendada ja iga kulutus ikkagi pigem vähendab neid sissetulekuid ja kõike tehakse ikkagi suht peost suhu ja kui pekki läheb , siis täiega :D

Matemaatikast siin juba räägiti, eelarvestamine ja planeerimine on asi mis võtab aega ja seda on raske leida või põhjendada. Sellise suhtumisega muidugi võib kergemini põleda, kui teemaalgatajal on, aga see võib olla ta ainus suhtumine ja kui leiab tegijad võib õnnestuda , võib saada eluruumid valmis ja pooliku garaazi jne ei ole ju maailmalõpp. :D terve Eesti on selliseid ehitisi täis kus kolmas põlv teeb pööningule endale toa jne.
rst
Ehitusspets
Ehitusspets
Postitusi: 414
Liitunud: 30 Okt 2013, 17:18
On tänanud: 18 korda
On tänatud: 18 korda

Re: Maja ehitushind.

Lugemata postitus Postitas rst »

aero kirjutas: 30 Apr 2021, 09:46 Saan aru, et sina vabal ajal ehitada ei taha, teed pigem oma põhitööd. Hästi. Aga paljud inimesed - olles 8-10h päevas täie pingega põhitööd teinud, EI TAHA õhtud ja NV-d jälle sama asja teha. Mina ei tahaks. Tahan vaheldust. Hobiehitamine on paljudele "päevatöödele" päris ok vaheldus. Ise tehes tean täpselt, mis ja kuidas. Spetsialistidega on mul valdavalt hästi läinud aga on ka halbu kogemusi. Räägin praegu väiksematest mahtudest, mitte maja ehitamisest võtmeteni.
Tegelen igapäevaselt projekteerimisega ning päriselt on ka mõnus vahel ise saag või trell kätte võtta omast vabast ajast ning midagi ehitada.
Ei tulnud mõttesegi, et lasen laste mängumaja kellelgi teisel ehitada. Tahtsin ise teha.

Samas oli käsil maja renoveerimine ja mul ei tulnud mõttesse, et hakkan ise maja fassaadi soojustama ja viimistlema või ise põrandat valama või näiteks maalritöid tegema.
xxx111
külaline

Re: Maja ehitushind.

Lugemata postitus Postitas xxx111 »

enda palk on väiksem, kui ehitajal. See , et sinul on suurem on väga tubli tulemus, kahjuks oled 10% Eesti elanike seas selle tulemusega ja teised peavad asju lahendama teisiti
Ei nõustu põhimõtteliselt
See, et endal on palk väiksem ei tähenda, et seda ei peaks arvestama
See, et endal palk väiksem, ei tähenda automaatselt, et kogukulu on väiksem (kulunud aeg on ka pikem)
tabarabarap
Ehitusveteran
Ehitusveteran
Postitusi: 1502
Liitunud: 27 Mai 2019, 23:02
On tänanud: 6 korda
On tänatud: 64 korda

Re: Maja ehitushind.

Lugemata postitus Postitas tabarabarap »

jaguar3 kirjutas: 30 Apr 2021, 00:34 Aga seda et minu projektis on tegemist juurdeehitusega, kus on üpris suur garaaž, kelder, mitu abiruumi. Katus koos katusekorrusega tuleks majast suurem, ulatuks üle terrassi. Vana majaosa saab ka uue katuse. Saun. Ühine välisviimistlus. Osad olemasolevad ruumid vajavad tegemist, osad mitte. On ju ilmselge et kelder või siis garaaž vähendavad m2 hinda, kuna neis pole siseviimistlust. Oleks hea esialgne umbkaudne eelarve koostada (+/- 25% poleks probleem), aga ei saa, ei tea hindasid. Saaks hinnad välja arvestada kasutades % näiteks üldtuntud hinnast 1500€/m2. Aga siin vist ei tea keegi eraldi tööde hindasid või siis nende % osa koguhinnast.
me ei tea täpselt mis su projektis on , aga võta ise projekt loogilisteks tükkideks mille kaudu tahad läheneda , pinnas, vundament jne ja löö koos etapi projektidega hange.ee -sse üles saad pakkumised taha ja võibolla ka kontakte kellega kõike arutada. Siis saad hinnad välja arvestada reaalsete pakkumiste alusel ja sellele +35% juurde panna . Aastaaega arvestades oled pakkumiste küsimisega muidugi lootusetult hiljaks jäänud ja sellega peaks tegelema hakkama täna või augustist, et järgmiseks kevadeks/suveks kedagi endale midagi tegema saada . Planeerimiseks sobib muidugi iga aeg, aga praegu lihtsalt ei hakkagi paljud seal pakkuma kuna pole pakkumiseks vaba aega.
tabarabarap
Ehitusveteran
Ehitusveteran
Postitusi: 1502
Liitunud: 27 Mai 2019, 23:02
On tänanud: 6 korda
On tänatud: 64 korda

Re: Maja ehitushind.

Lugemata postitus Postitas tabarabarap »

xxx111 kirjutas: 30 Apr 2021, 10:53
enda palk on väiksem, kui ehitajal. See , et sinul on suurem on väga tubli tulemus, kahjuks oled 10% Eesti elanike seas selle tulemusega ja teised peavad asju lahendama teisiti
Ei nõustu põhimõtteliselt
See, et endal on palk väiksem ei tähenda, et seda ei peaks arvestama
See, et endal palk väiksem, ei tähenda automaatselt, et kogukulu on väiksem (kulunud aeg on ka pikem)
Võid ju muidugi jääda oma arvamuse juurde , aga see tuleb eelkõige sellest , et elu ei löö (enam) jalaga p*se piisavalt :) saad teha mugavusvalikuid. Ma ei vaidle ka vastu, et nii ei oleks mõistlik ja murevabam.

N: oma lühikese elukogemuse põhjal ja pere kasvades olen olnud sunnitud renoveerima perele 3 elamist, nendest 2 korterit mis on ajamahult triviaalsed (mõned kuud) ja ühe elumaja mille ajamaht oligi aasta tööd põhitöö kõrvalt. Ei ole elus teeninud nii suurt palka, et jõuaks seda kõike teha teenusena. Teenustest sai kasutatud põhiliselt lammutus, inseneri , elektritööd, viimistlus ja transport ja ülejäänud tuli oma väikeste kätekestega paika seada

See ei tähenda, et ma ei oleks suutnud korterit teha teenust ostes, aga oleks kindlasti tähendanud, et peale sellist otsust ei oleks olnud raha tulevikus maja ostuks või ka teise korteri renoveerimiseks jne.

Arvutada võib ju igatpidi. Hea , kui on üha rohkem neid kes saavad arvutada teenuseid kaasates või nagu sina nõustud.
xxx111
külaline

Re: Maja ehitushind.

Lugemata postitus Postitas xxx111 »

Kui teemaalgatajal on projekt siis vali välja nt 3 ehitusfirmat keda usaldad ning palu pakkumist
NB!
Ole valmis selleks, et see maksab!
mõte
Regulaarpostitaja
Regulaarpostitaja
Postitusi: 94
Liitunud: 23 Dets 2018, 21:53
On tänatud: 7 korda

Re: Maja ehitushind.

Lugemata postitus Postitas mõte »

Panen omd mõtted kirja.
Täna väga keldreid ei ehitata, sellel on põhjus, maa sees ehitamine on kallis. Augu kaevamine, pinnase utiliseerimine (veo teenus on kallis), keldri seinad peavad olema piisavalt tugevad pinnase surve vastu võtmiseks. korraliku katkematu hüdroisolatsiooni kihi loomine, Keldri vahelagi tõenäoliselt betoonist. Lisaks on ehitushinna vahe väga suur, kas teed keldri kruusamäe otsa või sohu.
Lisaks arvesta seda, et põranda pindala vs seina pindala suhe, kui on ristkülik külgede pikkusega 2x3 on pindala 6 ja ümbermõõt 10, nüüd pikendades külgesid poole võrra 4x6 on pindala 24 ja ümbermõõt 20 ehk ümbermõõt kahekordistus siis pindala neljakordistus. Kuid ega põrandad, laed, katused tasuta tule, kõik tuleks tableisse panna ning arvutada.
xxx111
külaline

Re: Maja ehitushind.

Lugemata postitus Postitas xxx111 »

Finantseerimise all ei mõelda täna teenitavat palka
Finantseerimise alla kuulub ka laen mida oled võimeline teenindama

Mis puutub ise tegemisse siis ma ei taha öelda muud kui seda, et loogiline oleks seda arvestada
Ja täpselt selle hinnaga mida teeniks samal ajal alternatiiviga (kes teenib rohkem arvestab suurema summaga / kes vähem väiksemaga)
T25
Ehitusveteran
Ehitusveteran
Postitusi: 1294
Liitunud: 14 Mai 2007, 13:15
On tänanud: 5 korda
On tänatud: 16 korda

Re: Maja ehitushind.

Lugemata postitus Postitas T25 »

Iseehitamine on tore, aga põhitöö kõrvalt maja nullist püsti panek ei tundu reaalne. Oleneb muidugi tööst, kui on võimalik töö juurest ära "hiilida" ja kodukontorit teha, siis ehk on võimalik.
mõte
Regulaarpostitaja
Regulaarpostitaja
Postitusi: 94
Liitunud: 23 Dets 2018, 21:53
On tänatud: 7 korda

Re: Maja ehitushind.

Lugemata postitus Postitas mõte »

T25 kirjutas: 30 Apr 2021, 11:26 Iseehitamine on tore, aga põhitöö kõrvalt maja nullist püsti panek ei tundu reaalne. Oleneb muidugi tööst, kui on võimalik töö juurest ära "hiilida" ja kodukontorit teha, siis ehk on võimalik.
Kellel on tahtmine, leiab võimaluse! Kellel puudub tahtmine leiab vabanduse!
ifffff
Ehitusveteran
Ehitusveteran
Postitusi: 1867
Liitunud: 31 Okt 2006, 00:18
On tänanud: 17 korda
On tänatud: 62 korda

Re: Maja ehitushind.

Lugemata postitus Postitas ifffff »

T25 kirjutas: 30 Apr 2021, 11:26 Iseehitamine on tore, aga põhitöö kõrvalt maja nullist püsti panek ei tundu reaalne. Oleneb muidugi tööst, kui on võimalik töö juurest ära "hiilida" ja kodukontorit teha, siis ehk on võimalik.
Mnjaa, veel 2 põlvkonda tagasi algas majaehitus hobuse, kirve ja käsisaega metsaminekust. Ja ei tundunud ebareaalne.
xxx111
külaline

Re: Maja ehitushind.

Lugemata postitus Postitas xxx111 »

Mnjaa, veel 2 põlvkonda tagasi algas majaehitus hobuse, kirve ja käsisaega metsaminekust. Ja ei tundunud ebareaalne.
Ega see pole ebareaalne ka täna
Iseasi kui mõistlik see on
tabarabarap
Ehitusveteran
Ehitusveteran
Postitusi: 1502
Liitunud: 27 Mai 2019, 23:02
On tänanud: 6 korda
On tänatud: 64 korda

Re: Maja ehitushind.

Lugemata postitus Postitas tabarabarap »

xxx111 kirjutas: 30 Apr 2021, 13:20
Mnjaa, veel 2 põlvkonda tagasi algas majaehitus hobuse, kirve ja käsisaega metsaminekust. Ja ei tundunud ebareaalne.
Ega see pole ebareaalne ka täna
Iseasi kui mõistlik see on
kui mees, mets,m aa, hobune, kirves ja käsissaag olemas ja muud m**nigi teha pole, siis palkmajad/ehitised on väga hinnas :)
T25
Ehitusveteran
Ehitusveteran
Postitusi: 1294
Liitunud: 14 Mai 2007, 13:15
On tänanud: 5 korda
On tänatud: 16 korda

Re: Maja ehitushind.

Lugemata postitus Postitas T25 »

Palju siis on neid, kes põhitöö kõrvalt maja püsti on pannud ja palju lõppkokkuvõttes aega kulus?
ping
Ehituspenskar
Ehituspenskar
Postitusi: 6155
Liitunud: 28 Jaan 2016, 10:35
On tänanud: 113 korda
On tänatud: 295 korda

Re: Maja ehitushind.

Lugemata postitus Postitas ping »

xxx111 kirjutas: 30 Apr 2021, 01:55
Eelmise maja vundamendi maksumuseks pakkus tuttav firmaomanik 750 000eek+KM, aga tegime äiaga kahekesi ära umbes 8 korda odavamalt.
Täpselt sama vundament mida pakkus tuttav?
Kui täpselt sama ja 8x erinevus siis tuttav firmaomanik pani kõvasti puusse...
Lähteülesanne oli rajada kallakule ca 1,5m kõrge projektikohane betoonvundament 13x27m Aeroc majale, koos vajalike läbiviikude, soojustuse ja tagasitäidetega.
Teostus viisi ette ei andnud.
Hinnapakkumise kõik read oli ilusasti täidetud ja põhjenduseks kõlas: "Niiii uhke maja vundamenti ei saa kuidagi odavamalt teha".
(Eks selles hinnas sisaldus ka kogu vajaliku kontori objektile, putkadesse toomine ja muu luksus. Näiteks saalungite jaoks vajaliku filmvineeri ostmine ja selle hilisema utiliseerimise kulud.)
:hello:
Õppefilosoofia paradoks - õpetamine on tühi töö ja vaimu närimine, sest lollile ei jää nagunii midagi külge, andekas õpilane saab aga kõik ise selgeks, kui on loodud tingimused arenemiseks.
ping
Ehituspenskar
Ehituspenskar
Postitusi: 6155
Liitunud: 28 Jaan 2016, 10:35
On tänanud: 113 korda
On tänatud: 295 korda

Re: Maja ehitushind.

Lugemata postitus Postitas ping »

mõte kirjutas: 30 Apr 2021, 11:48
T25 kirjutas: 30 Apr 2021, 11:26 Iseehitamine on tore, aga põhitöö kõrvalt maja nullist püsti panek ei tundu reaalne. Oleneb muidugi tööst, kui on võimalik töö juurest ära "hiilida" ja kodukontorit teha, siis ehk on võimalik.
Kellel on tahtmine, leiab võimaluse! Kellel puudub tahtmine leiab vabanduse!
Põhitöö kõrvalt saab õppida, planeerida, projekteerida ja ehitamise perioodiks valida tsüklilise perioodiga põhitöö või hoopis mõneks kuuks põhitööst loobuda, et saaks ehitusele keskenduda.

Kui oma ehitustöö tsüklilisuse planeerimisel arvestada üldise töömeste tööturunõudluse tsüklilisusega, siis võib leida häid mehi mõistliku hinnaga.
(Näiteks võib olla kasulikum otsida (oma põhitöö kõrvalt) 3 kuud müürimehi kes nädalaga müürid püsti panevad, kui et palgata esimesed kättejuhtunud lurud keda pead (oma põhitöö kõrvalt) 2 kuu jooksul igapäev objektil utsitamas käima. Kuna ludrid leiavad, et nad on 2 kuud oma elust sinu müüridesse panustanud, siis igaüks tahab ka töö eest 2 kuu palka kah saada ju.)
:hello:
Õppefilosoofia paradoks - õpetamine on tühi töö ja vaimu närimine, sest lollile ei jää nagunii midagi külge, andekas õpilane saab aga kõik ise selgeks, kui on loodud tingimused arenemiseks.
jaguar3
Korralik postitaja
Korralik postitaja
Postitusi: 192
Liitunud: 21 Okt 2011, 13:40
On tänatud: 8 korda

Re: Maja ehitushind.

Lugemata postitus Postitas jaguar3 »

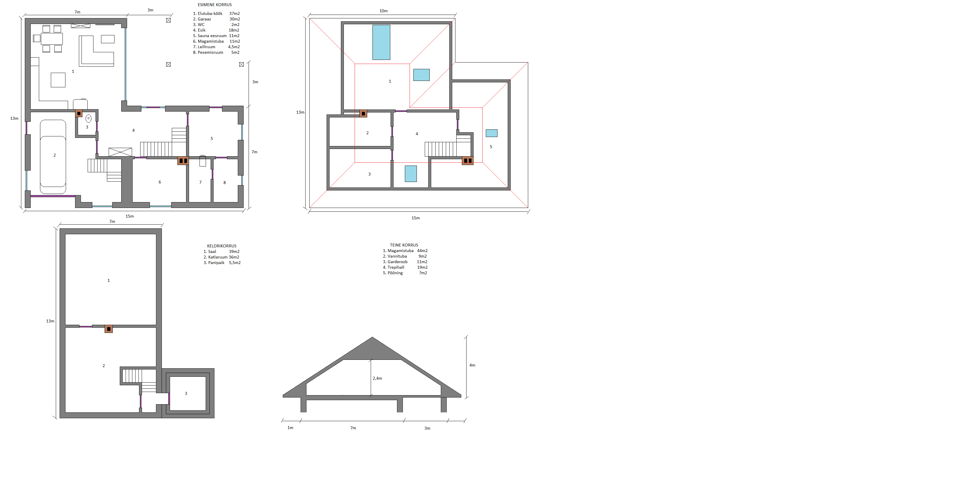
Ok, anname rohkem infot. Umbkaudne näidisjoonis ideest.
L-kujuline maja siis. Parempoolne tiib on juba olemas (ruumid 4,5,6,7 ja 8 + väike kelder 3), sellel tuleb lihtsalt katus maha võtta ja uus katus tervele majale ehitada + välisviimistlus.

m2 on suht umbes, sest seinapaksus korrigeerib neid hiljem täpsemaks.
Ülemise korruse ruumid ei ole veel korralikult läbimõeldud.
Mõõtudega saab mängida "standartiseerimise" vajadusel.

Küsiti miks keldrit teen? Pole ruumi maapeale ehitada rohkem. Kuiv maa (muidu isegi mitte ei kaaluks keldri ehitamist). Targem on ta valmis ehitada ja pigem jätta mõned muud ruumid tulevikku teha kui pärast kahetseda seda mida hiljem enam teha ei saa.
Projekt.png
Keeruline on endal hinda kalkuleerida, sest osad ruumid juba on olemas, osad tuleb nullist ehitada, osad uhkema viimistlusega, osad lihtsama, osad üldse ilma erilise viimistluseta. Ruute tuleb kokku ligi 300 ja üldtuntud valemit kasutades saame 300x1500=450 000. Absurd ju.

Etapid siis:
1. Projekt + kooskõlastused.
2. Lammutustöö. Üks 30m2 vana saunahoone ära lammutada + majal katus maha.
3. Keldri ehitamine.
4. Juurdeehituse ehitamine ja olemasoleva majaga sidumine.
5. Katus tervele majale.
6. Kommunikatsioonid + küte.
7. Välisviimistlus.
8. Siseviimistlus eluruumides.
9. Siseviimistlus mitteeluruumides (teen ise hiljem)
10. Siseviinistlus saunas (teen ise hiljem)
toomas
Ehitusveteran
Ehitusveteran
Postitusi: 1326
Liitunud: 02 Veebr 2005, 17:31
On tänatud: 35 korda

Re: Maja ehitushind.

Lugemata postitus Postitas toomas »

Ei ole ulme. Eriti veel maa alla ehitamine. Vaata korterite ruutmeetri hindu. Vana maha-lammutamine ja uuesti ülesehitus võib isegi soodsam tulla kui ümberehitamine ja sidumine uue hoonega. Vana ja uue hoone sidumine on inseneridele ka paras väljakute.
xxx111
külaline

Re: Maja ehitushind.

Lugemata postitus Postitas xxx111 »

300x1500=450 000. Absurd ju.
Miks absurd?
Ei ole absurd...
mõte
Regulaarpostitaja
Regulaarpostitaja
Postitusi: 94
Liitunud: 23 Dets 2018, 21:53
On tänatud: 7 korda

Re: Maja ehitushind.

Lugemata postitus Postitas mõte »

jaguar3 kirjutas: 30 Apr 2021, 16:25 Küsiti miks keldrit teen? Pole ruumi maapeale ehitada rohkem. Kuiv maa (muidu isegi mitte ei kaaluks keldri ehitamist). Targem on ta valmis ehitada ja pigem jätta mõned muud ruumid tulevikku teha kui pärast kahetseda seda mida hiljem enam teha ei saa.
Mis takistab kõrgusesse minna, detailplaneering?
Lisa joonisele ilmakaared.
Vasta