Ahiküttega maja
-
ahjukütja
- külaline
Ahiküttega maja
Lugemata postitus Postitas ahjukütja »
Olles tuulanud netis kõikvõimalikke valmisprojekte, pole veel ühtegi ideaalset näinud. Tehakse igasugu rumalusi, sellist praktilist klassikalist ahiküttega eramut, millel mõned moodsa aja asjad juures oleks (dušš, wc), polegi kohanud. Ikka on arvestatud mingi keskküttega, sageli tegevad projekteerijad lauslollustega nagu näiteks leiliruumi maja välisseina äärde või lausa nurka panemisega. Loogiliselt peaks olema konstrueeritud nii, et hoone keskel on soojemad ja ääres jahedamad ruumid, et kokku oleks viidud näiteks köögi pliidi soemüür ja pesuruumi sein (pesuruumi kütteks). Kõikvõimalikud kanalisatsiooni- ja veevärgindused asuksid võimalikult lähestikku jne.
Ehk kokkuvõtlikult - ökonoomne ja nutikas elupaik keskmisele eesti perele (2 last), ruutmeetreid umbes 110-150, 4 tuba + köök, sahver, poolteist korrust (üleval 2 tuba), alumise korruse lagi 2,8-3m. 2-3(?) voodriga pottahju ja pliit kööki, puuküttega keris, pesuruumi põrandal elektriküte, tarbevee soojendamine elektriboileriga. Juurde veel puukuur ja auto varjualune.
Kas osatakse ja tahetakse sellist projekteerida?
- Hiid
- Ehituspenskar

- Postitusi: 4472
- Liitunud: 30 Jaan 2005, 12:46
- Asukoht: Tartu
- On tänanud: 114 korda
- On tänatud: 92 korda
Re: Ahiküttega maja
Lugemata postitus Postitas Hiid »
ei saa su teemapüstitusest hästi aru, aga mul tekib küsimus, et kas kavatsed teha sooja mittepidavate seintega sauna keset maja?ahjukütja kirjutas: sageli tegevad projekteerijad lauslollustega nagu näiteks leiliruumi maja välisseina äärde või lausa nurka panemisega. Loogiliselt peaks olema konstrueeritud nii, et hoone keskel on soojemad ja ääres jahedamad ruumid,
-
Ahjukütja
- külaline
Re: Ahiküttega maja
Lugemata postitus Postitas Ahjukütja »
Ükski sein ei pea sooja, vahe on vaid soojuse "lekkimise" kiiruses. Ma ei mõista küsimuse mõtet... teemasse see ei tundu küll väga minevat.Hiid kirjutas:ei saa su teemapüstitusest hästi aru, aga mul tekib küsimus, et kas kavatsed teha sooja mittepidavate seintega sauna keset maja?
- Hiid
- Ehituspenskar

- Postitusi: 4472
- Liitunud: 30 Jaan 2005, 12:46
- Asukoht: Tartu
- On tänanud: 114 korda
- On tänatud: 92 korda
Re: Ahiküttega maja
Lugemata postitus Postitas Hiid »
aga eks me oota targemate vastused ka ära
Re: Ahiküttega maja
Lugemata postitus Postitas keski »
Samas tullakse ikka tellija erisoovidele vastu ja selliste erisoovidega maja võime ikka projekteerida. Jätke kontaktid.
-
Külaline
- külaline
Re: Ahiküttega maja
Lugemata postitus Postitas Külaline »
Saun on parim ikkagi omaette hoonena (võimaluse korral).
-
mbl
- külaline
Re: Ahiküttega maja
Lugemata postitus Postitas mbl »
-
Ahjukütja
- külaline
Re: Ahiküttega maja
Lugemata postitus Postitas Ahjukütja »
Sümpaatseim näide mõtteviisist, mida ma netist leidnud olen: http://www.hot.ee/heikkiz/okomaja.html .
-
mbl
- külaline
Re: Ahiküttega maja
Lugemata postitus Postitas mbl »
Kui sind huvitab ökomaja siis uuri ka internetist mõistet passiivmaja
Minu arusaamise järgi see küll natuke vastandub ökomaja ideele kuid eesmärgid enamvähem samad - säästlikum eluviis
Passiivmaja ideed on palju arendatud saksamaal,
kuid meil peaks ka esialgsed reaalsed näited tulemas olema.
-
Ahjukütja
- külaline
Re: Ahiküttega maja
Lugemata postitus Postitas Ahjukütja »
-
Ahiküttega majas ülirahul
- külaline
Re: Ahiküttega maja
Lugemata postitus Postitas Ahiküttega majas ülirahul »
Olen elanud nüüd paikselt paar aastat maamajas, mille 10 aastat tagasi ehitasin.
Pooleteistkordne, alakorrus fibost ja väljas kivivill, tuuletõke, vooder. Ülakorruse otsad puitsõrestik.
Olen väga rahul selle lahendusega, mille joonistasin arhitektile ette aastal 1987. Eesmärgiks oli lahendada kogu alakorruse küte ühe ahju ja ühe korstnaga - mille küljes ka soemüüriga Pioneer pliit.
Tahaksin enda 11X8,7 meetri põhiplaaniga ideed edasi optimeerida - mine tea, võib-olla õnnestub veel proovida. Eesmärgiks tehniline lihtsus ja hilisem kasutusmugavus. Puud toon oma metsast - see ei olegi nagu töö, vaid pigem lõbu - kütet läheb ju nii vähe.
Kas kellelgi on tekkinud soovi kaasa mõelda või on lisandunud mingeid projekte? Hoiatan - see maja on esmapilgul väga igav. Aga selliseid 45-kraadise kasutusega ristkülikuid on ju terve maa täis. Lihtsa inimese lihtne maja.
-
Külaline
- külaline
Re: Ahiküttega maja
Lugemata postitus Postitas Külaline »
-
Ahiküttega majas ülirahul
- külaline
Re: Ahiküttega maja
Lugemata postitus Postitas Ahiküttega majas ülirahul »
Ainuke "võõrkeha" on üks pisike koridorijupp köögist tagumisse elutuppa, kuna kusagile tuli ju paigutada ka vannituba ja sellest koridorijupist käib pääs vannituppa. Aga nii on vannitoa üks sein ilusti pliidi soemüüriga sama.
Aga tahaks väga lugeda või kuulda, et kas keegi on sellist eesmärki juba täita püüdnud - midagi sellist valmis tehtud või mingit veel paremat lahendust olemas? Minu idee sai tegelikult aluse vanadest vene ohvitseride peredele ehitatud nn Soome majadest. Aga usun, et vanasti mõeldi just sellist tüüpi optimeerimisele rohkem. Arhitekte pean küll taas hoiatama - see tulemus on IGAV!
-
Külaline
- külaline
Re: Ahiküttega maja
Lugemata postitus Postitas Külaline »
-
Ahiküttega majas ülirahul
- külaline
Re: Ahiküttega maja
Lugemata postitus Postitas Ahiküttega majas ülirahul »
Mida oleks hästi lihtne ehitada ja hiljem odav pidada.
Mida ei loksuta ka mitmepäevane elektrikatkestus või midagi veel hullemat. Mis sobib maale hajaasustusse, kus naaber naabrile nähtav pole. Kus ei ole vaja mõelda külakaunistuse konkursi kõrge tulemuse peale. Kus on esmalt mõeldud iseenda peale.
Või pean ma tajuma lootusetut vastandumist tänaste arusaamadega? Kui jah, siis tunnen selle üle ainult rõõmu ja uhkust.
-
Külaline
- külaline
Re: Ahiküttega maja
Lugemata postitus Postitas Külaline »
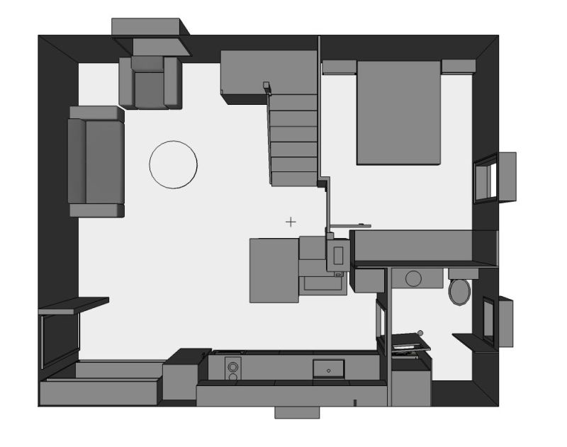
Ei saa nüüd kohe asjale pihta.Pane joonis ja ahi ka joonisele.Ahiküttega majas ülirahul kirjutas:Sissepääs esikülje vasakust nurgast või otsast. Väike esik, millelt trepp ülakorrusele. Ülakorrus alakorrusest eraldi - seda pidevalt ei küta. All esikust kohe elutuba ja selle järel avatud köök maja ühel küljel ja siis korstnast teisel küljel kaks magamistuba. Köök on avatud - piki maja on kandesein ja köögisosa siis sillusega laialt elutoa poole lahti. Elutoast köetav ahi ulatub kõigisse kolme tuppa. Kui esikülje soojast elutoas ja köögis väheks jääb või vaja kiiresti sooja, siis annab seda pliidiraud.
-
koxik
- külaline
Re: Ahiküttega maja
Lugemata postitus Postitas koxik »
-
Külaline
- külaline
Re: Ahiküttega maja
Lugemata postitus Postitas Külaline »
Kas see on mingi joonise (mida näha pole) kirjeldus või lihtsalt jutt? Kangesti tahaks minig t visuaalset pilti ette.Ahiküttega majas ülirahul kirjutas:Sissepääs esikülje vasakust nurgast või otsast.
...
-
Ahiküttega majas ülirahul
- külaline
Re: Ahiküttega maja
Lugemata postitus Postitas Ahiküttega majas ülirahul »
http://hot.ee/lihtnemaja/1-korrus.jpg
Ahju mõõdud vist ei ole õiged ja pioneer pliit on otse vastu vannitoaga seotud soemüüri. Ainuke eba vahepind ongi väike lüüs vannitoa ukse ees, aga kui palju on igasugu abipindasid ja vahekoridore tüüpprojektidel!? Vaatain millalgi Omatalosid - kui köögi valamud, siis ikka ühes välisseinas ja WC, saun kindlasti teises välisseinas ja kui WC eraldi, siis ikka kolmandas seinas ja kui teisel korrusel ka mingi veevarustusega ruum, siis see kindlasti maja neljada seina vastas....
Ka ilmakaartega sai kuidagi kogemata õigesti pandud - sahver on põhjas ja ... - noh - lõuna-põhi on diagonaalselt paremast esinurgast sahvri suunas. Väga tähtis aspekt praktilises kautuses muide - kui päikse kõrgust ja käiku jälgida!!!
Aga olen püüdnud ka põhiplaani optimeerida - ehituslikult veel lihtsamaks joonistada.
Nii, et väljast täiesti igav ristkülik saaks. Ma arvan, et tahan selliselt pakkuda üht valikut paljudest. Inimeste soovid ja vaated on erinevad. Kui sellist tüüpi optimeerimise vastu siin veel huvi leidub, võite kirjutada lihtnemaja@hot.ee
Taustast nii palju, et minul isiklikult on kõrini kapitalismi mängimisest - igasugu kategooriatest "äriplaan", "kasum", "konkurents". See viimane tähendavat võitu kellegi teise kaotuse arvel. Ja mind võluvad mõisted "koostöö", "abistamine", "kogukondlik tegevus" - koos nendega rõõm headest inimestest.
Sellises majas on üliodav elada! Loomulikult maal. Ei unista mingist passivmajast ega päikesepaneelidest, kui samas ümber mädaneb arutul hulgal lehtpuumetsa, mida tõsine ärimees rohkem võsaks nimetaks. Aga oi kui valusat tuld annab - saar, sarapuu - isegi siis, kui aastakse ilma käes olnud - ongi muide lihtsam kasutada - oksad tulevad kergemini küljest ja kuivab kiiremini läbi.
Mitte mingeid raskeid masinaid ei ole vaja. Käsikäruga talvepuu metsast ja nii kuidas aega ja viitsimist, vähehaaval riita kuivama. Ja seda tõmmet - alatest kevadistest ilusatest valgusküllastest päiksepäevadest - metsa suunas, on piisavatl kogetud ja tulemusena küttepuud ilusti riidas.
Aga õige "klient" tahab oma maja rajama hakates ikkagi midagi muud. Kindlasti põrandaküte jne jne.
-
heints
- Korralik postitaja

- Postitusi: 229
- Liitunud: 11 Sept 2008, 21:45
- Asukoht: Kuressaare 53401861
- On tänanud: 67 korda
- On tänatud: 16 korda
- Kontakt:
Re: Ahiküttega maja
Lugemata postitus Postitas heints »
http://www.hot.ee/heintss/maja.html
- Manused
-
- pisimaja.jpg (28.51 KiB) Vaadatud 7976 korda
-
Ahiküttega majas ülirahul
- külaline
Re: Ahiküttega maja
Lugemata postitus Postitas Ahiküttega majas ülirahul »
Kui kaugele Google joonestusprogrammiga oled jõudnud? Hästi inspireerivaid videonäiteid on selle kasutamise kohta, aga mõned vajalikud baasoskused ei ole mulle veel kätte sattunud. Näiteks programmi poolt omasuvatsi liidetud objektide lahutamine eraldi objektideks, et nendega edasi manipuleerida. Tahaks ehk keegi õpetajarolli võtta - tasulise kursuse korraldada? Huvilisi peaks jätkuma.
Mind võluvad mingid "vanamoodsad" põhimõtted, mille järgi ma veetarbijaid välisseina ei paigutaks - koondaks kogu veevärgi võimalikult maja keskmesse. WC mahtus küll ainult välisseina äärde, aga vist isegi hea, kui solk just sealt küljest välja juhtida.
-
heints
- Korralik postitaja

- Postitusi: 229
- Liitunud: 11 Sept 2008, 21:45
- Asukoht: Kuressaare 53401861
- On tänanud: 67 korda
- On tänatud: 16 korda
- Kontakt:
Re: Ahiküttega maja
Lugemata postitus Postitas heints »
Sketchup-ist liidetud objektil teed topelt kliki, objekt läheb siis heledamaks, siis saad teda muuta ja kõrval klikkides läheb endisesse asendisse tagasi, või teine võimalus, teed objekti aktiivseks ja paremaga valid explose, siis ta jääbki lahti.
Kursuste koha pealt, eks oma kogemuste edasi andmine paar tundi võibolla võtaks aga ma siin Kuressaares.
- motamees
- Ehituspenskar

- Postitusi: 2716
- Liitunud: 14 Jaan 2008, 12:57
- Asukoht: Saar
- On tänanud: 211 korda
- On tänatud: 191 korda
Re: Ahiküttega maja
Lugemata postitus Postitas motamees »
Projektilt vaatas mulle vastu minu lapsepõlvekodu elamu põhiplaan. Isegi sahver sama koha pääl. Peldik oli kaugemal, väliskoridoris. Loomulikult ei olnud meil veevärki sees. Vee tõime vennaga 100m kauguselt kaevust käsitsi...Ahiküttega majas ülirahul kirjutas:Esialgu "avaldan" vana joonise koopia, millele said kunagi mõned muudatused ja lisad peale sikerdatud.
Ka nüüd mõtlen taolise elamu pääle. Maal olemas koht, kuhu selline ehitada.
Kuna tualetist tuleb enamus solki, siis mõtlen isegi selle muutmist peldikuks. Nii nimetati vanasti kuivkäimlat. Tänapäeval on olemas täiesti tsiviliseeritud peldikute variante. Väga väikse solgivee koguse puhul ei olegi hõreasustuse puhul vaja teha mingit imbsüsteemi.
Ja elementaarne ju, et maal on ahiküte ja pliidil tehakse süüa. Ventilatsiooniga tegeleb ahi ja pliit. Ei ole ju mõtet raha kulutada kõigepealt maja kiletamisele/hermetiseerimisele ja siis jälle kulutada raha ventilatsiooni peale. Maja peab ise "hingama".
Nii, et teema on täiesti südamelähedane. Jälgin huviga.
Tel 5o9279o
-
Ardi
- Ehitusguru

- Postitusi: 878
- Liitunud: 26 Okt 2006, 21:32
- Asukoht: Raplamaa,Juuru
- On tänanud: 1 korda
- On tänatud: 3 korda
Re: Ahiküttega maja
Lugemata postitus Postitas Ardi »
Võiks olla lausa arvutiprogrammina,standard maja,mida saaksid pikendada nagu exelis taeblit,lisada näiteks vintskapi,eeskoda,aknaid,liigutada uste asukohta jms.
Osutan ka palgisaagimisteenust mobiilse lintsaekaatriga.
- rokikas
- Ehituspenskar

- Postitusi: 6922
- Liitunud: 30 Jaan 2005, 15:38
- Asukoht: Saue
- On tänanud: 227 korda
- On tänatud: 231 korda
Re: Ahiküttega maja
Lugemata postitus Postitas rokikas »
Huvitav palju sellistele tingimustele vastava maja projekt tellides maksabArdi kirjutas:,odavalt ehitatava,kompaktse nn,talumaja tüüpi maja tüüpprojekti.Mida vähem keerulisi vidinaid ja mida igavam,seda parem.
Lihtne ehitada, hea soojapidavusega (näiteks klaasseinad ei ole teretulnud), praktiline ning mugav ja odav kasutada. Sellised tagasihoidlikud tingimused.
Ehk mõni teadja viitsib seda hinna suurusjärku siin valgustada.
ehitusremont@gmail.com
Mine “Projekteerimine, projektid”
- Ehitusfoorum
- ↳ Üldfoorum
- ↳ Ahjud, kaminad, korstnad
- ↳ Aiad, väravad
- ↳ Aknad, uksed
- ↳ Betoon ja betoonitooted
- ↳ Ehitustööriistad
- ↳ Ehitusmaterjalid
- ↳ Elekter, elektriseadmed
- ↳ Energiamärgis ja energiaaudit
- ↳ Fassaadide arutelu
- ↳ Katused, laed
- ↳ Hüdroisolatsioon
- ↳ Kaevud
- ↳ Konstruktsioonid, seinad
- ↳ Küttesüsteemid
- ↳ Palkmajad
- ↳ Projekteerimine, projektid
- ↳ Põrandad
- ↳ Puit ja puidutooted
- ↳ Restaureerimine
- ↳ Seadusandlus
- ↳ Soojustus, isolatsioon
- ↳ Saunad, dussiruumid, vannitoad, sanitaartehnika
- ↳ Siseviimistlus, värvid, plaatimistööd
- ↳ Ventilatsioon
- ↳ Veevarustus, kanalisatsioon, käimlad
- ↳ Vundamendid
- ↳ Naljanurk
- ↳ Arhiiv
- Ärifoorumid
- ↳ Otsin tööd
- ↳ Pakun tööd
- ↳ Ostu-müügifoorum
- ↳ Annan/võtan rendile
- ↳ Hinnapäring
