Vaja eramu projekti ehitusloa taotlemiseks Harku vallas.
Peaks sisaldama:
- vajalikus mahus ehitusprojekti eramule sh. energiaarvutused, energiamärgis.
- kooskõlastused ehitusloa taotlemiseks.
- eriosade projektid(vesi-kanal,vent,küte, elekter) need võib pakkuda ka eraldi.
-detailplaneering olemas
-maja kõrgus 9m
-ehitusalune pind 400m2
-maja koos garaaziga ca 200m2
-funkstiilis, katused kaldega
-fassaadi viimistluseks krohv ja puit
-kütteks tuleks õhk-vesi põrandaküte mõlemale korrusele
-vahelaed teeks puidust
-soojust selvestav kamin elutoas
-soojust tagastav ventilatsioon
-ehituskivi veel valimata(maht teada, saaks teha kalkulatsioonid)
-Katuseks plekk, garaazi pealsele terassile ruberoid
NB! Võib pakkuda ka vundamendi tegemist, koos pinnase tööga ja materjaliga...,vundamenti valmis kujul. Soovitavalt lintvundament.
aimar80@outlook.com
2-kordse kivimaja projekt ja geodeetiline alusplaan Harku vallas
Siia foorumisse postitage ainult tööpakkumised!
Foorumi reeglid
NB! Tööpakkumise korral lisage ka asukoht! Kui teema algataja ei soovi enam tööpakkumisi, siis oleks soovitav seda ka oma teemas teada anda, et Administraator saaks teema lukku panna. Kui soovite aga hoida oma tööpakkumise teemat kõikide postituste eesotsas Kleepsuna, siis on see võimalik tasulise teenusena. Huvi korral saata privaatsõnum kasutajale Kristel
NB! Tööpakkumise korral lisage ka asukoht! Kui teema algataja ei soovi enam tööpakkumisi, siis oleks soovitav seda ka oma teemas teada anda, et Administraator saaks teema lukku panna. Kui soovite aga hoida oma tööpakkumise teemat kõikide postituste eesotsas Kleepsuna, siis on see võimalik tasulise teenusena. Huvi korral saata privaatsõnum kasutajale Kristel
2-kordse kivimaja projekt ja geodeetiline alusplaan Harku vallas
Lugemata postitus Postitas aika »
- Manused
-
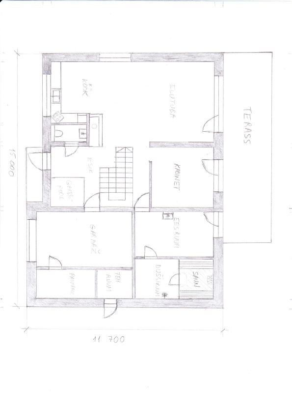
- Maja esimese kooruse põranda plaan
- thumbnail_maja%201.jpg (68.41 KiB) Vaadatud 1181 korda
-
- Maja tagant vaates
- thumbnail_maja3.jpg (107.17 KiB) Vaadatud 1181 korda
-
- Maja eest vaates
- thumbnail_maja2.jpg (110.71 KiB) Vaadatud 1181 korda
-
haustec
- külaline
Re: 2-kordse kivimaja projekt ja geodeetiline alusplaan Harku vallas
Lugemata postitus Postitas haustec »
Tere
Kui Te pole veel projekteeriat leidnud, siis võtke meiega ühendust ning me teeme Teile hinnapakkumise.
info@haustec.ee
www.haustec.ee
Kõike paremat
Haustec OÜ meeskond
Kui Te pole veel projekteeriat leidnud, siis võtke meiega ühendust ning me teeme Teile hinnapakkumise.
info@haustec.ee
www.haustec.ee
Kõike paremat
Haustec OÜ meeskond
Hüppa
- Ehitusfoorum
- ↳ Üldfoorum
- ↳ Ahjud, kaminad, korstnad
- ↳ Aiad, väravad
- ↳ Aknad, uksed
- ↳ Betoon ja betoonitooted
- ↳ Ehitustööriistad
- ↳ Ehitusmaterjalid
- ↳ Elekter, elektriseadmed
- ↳ Energiamärgis ja energiaaudit
- ↳ Fassaadide arutelu
- ↳ Katused, laed
- ↳ Hüdroisolatsioon
- ↳ Kaevud
- ↳ Konstruktsioonid, seinad
- ↳ Küttesüsteemid
- ↳ Palkmajad
- ↳ Projekteerimine, projektid
- ↳ Põrandad
- ↳ Puit ja puidutooted
- ↳ Restaureerimine
- ↳ Seadusandlus
- ↳ Soojustus, isolatsioon
- ↳ Saunad, dussiruumid, vannitoad, sanitaartehnika
- ↳ Siseviimistlus, värvid, plaatimistööd
- ↳ Ventilatsioon
- ↳ Veevarustus, kanalisatsioon, käimlad
- ↳ Vundamendid
- ↳ Naljanurk
- ↳ Arhiiv
- Ärifoorumid
- ↳ Otsin tööd
- ↳ Pakun tööd
- ↳ Ostu-müügifoorum
- ↳ Annan/võtan rendile
- ↳ Hinnapäring
