Kritiseerige projekti (pildid)
-
bjorn
- Korralik postitaja

- Postitusi: 201
- Liitunud: 05 Veebr 2016, 13:27
- On tänanud: 5 korda
- On tänatud: 5 korda
Kritiseerige projekti (pildid)
Lugemata postitus Postitas bjorn »
Proovitud on läheneda võimalikult praktiliselt ja selliselt, et ehitada oleks lihtne ja loogiline (enamik töid ilma teenust sisse ostmata). Kandev vahesein täpselt keskel, sille 4,5 meetrit max. Esimene ja teine korrus sarnase lahendusega, kandev sein ja avad sarnased.
Kasulik pind ca 160 ruutu.
Hetkel on suureks küsimuseks jäänud moodulkorstna asukoht, mis on hetkel välisseina ääres. Kas see on teostatav? Tean, et pööningul peab olema korstnale ligipääs, aga madala katuse puhul on tegemist sisuliselt katuslaega, siis see ei kehti? Hetkel on korsten selliselt, et ühelt poolt tuleks sauna ahju lõõr ning teiselt poolt puugaasikatla oma. Lisaks on korsten välisseina ääres, et teisel korrusel ei tekiks probleemi selle paigutusega.
Igasugune konstruktiivne kriitika on teretulnud miks midagi teisiti võiks teha. Maja asetust lõuna suuna suhtes ei saa muuta, ning küljepeal sisenemine on samuti soositud asukohas. Kui keegi täpsemalt kaasa tahab rääkida, siis võin üles laadida ka SketchUp faili.
-
Külaline
- külaline
Re: Kritiseerige projekti (pildid)
Lugemata postitus Postitas Külaline »
-
bjorn
- Korralik postitaja

- Postitusi: 201
- Liitunud: 05 Veebr 2016, 13:27
- On tänanud: 5 korda
- On tänatud: 5 korda
Re: Kritiseerige projekti (pildid)
Lugemata postitus Postitas bjorn »
Algne variant oli, et sauna kütmine käib läbi tehnoruumi teisel pool seina, kuid siis läks kitsaks komponentide paigutusega tehnoruumi.
-
Külaline
- külaline
Re: Kritiseerige projekti (pildid)
Lugemata postitus Postitas Külaline »
-
rein113
- Ehitusveteran

- Postitusi: 1136
- Liitunud: 06 Apr 2009, 13:05
- Asukoht: Pärnu
- On tänanud: 57 korda
- On tänatud: 41 korda
Re: Kritiseerige projekti (pildid)
Lugemata postitus Postitas rein113 »
(Võib-olla väljendusin veidi liiga karmilt...)
-
Külaline
- külaline
Re: Kritiseerige projekti (pildid)
Lugemata postitus Postitas Külaline »
Kas 2 korruse kanali toru hakkab ka läbi eeskoja jooksma? Või teleka kõrvalt?
Kus pool lõuna on?
Akende ja toapõranda pindala suhe on ka normeeritud.
ping
-
tonxx
- külaline
Re: Kritiseerige projekti (pildid)
Lugemata postitus Postitas tonxx »
Mina teeks sauna asemele wc ning korraliku sauna ehitaks maja kõrvale.
Dushinurga arvelt teeks tehnoruumi suuremaks ja korstna paneks köögi/elutoa/pesuruumi vahelisse seina, et samasse saaks teha nii vent ja suitsulõõri.
Elutoas võiks olla kamin või kamina paigaldamise võimalus.
-
bjorn
- Korralik postitaja

- Postitusi: 201
- Liitunud: 05 Veebr 2016, 13:27
- On tänanud: 5 korda
- On tänatud: 5 korda
Re: Kritiseerige projekti (pildid)
Lugemata postitus Postitas bjorn »
Olen elanud majas, kus sama lahendus - trepi kõrgema osa alla on 1. korruse WC tehtud. Pead ära ei löö ning ise olen 188cm pikk. Küsimus on siin korruse, st. trepi kõrguses ning trepi pikkuses. Antud juhul on laed min. 2.5m ning trepi pindala 2,65x2,65m. Selle WC lagi ei ole siis horisontaalne, vaid lae pind ongi trepi astmed ehk astmeline.Külaline kirjutas:Ja 1-k ws lõõb vähe pikem mees pea ära.
Kui kriitika oleks konstruktiivne, siis ei oleks karm. Praegu ei loe mitte ühtegi punkti välja, mis valesti on? Arhitektki/projekteerija juurde läheks siis kui kõik enda mõtted on otsas ning vaja raha eest neid juurde võtta või arvutama hakata.rein113 kirjutas:Kas ühdegi usaldusväärset haridekti su tutvusrinkonnas ei ole?
(Võib-olla väljendusin veidi liiga karmilt...)
Eeskoda on 1,3x2,5m. Mõte oli, et kui ca 30cm jalatside riiul ja riiete nagi panna ühe seina äärde, siis jääb 1m käimiseks. Kas seda on vähe?Külaline kirjutas:Eeskoda - kitsas, pikk. Kui saapad paned ühe seina äärde ritta jääb vast 50cm käiguteeks?
Kas 2 korruse kanali toru hakkab ka läbi eeskoja jooksma? Või teleka kõrvalt?
Kus pool lõuna on?
Akende ja toapõranda pindala suhe on ka normeeritud.
ping
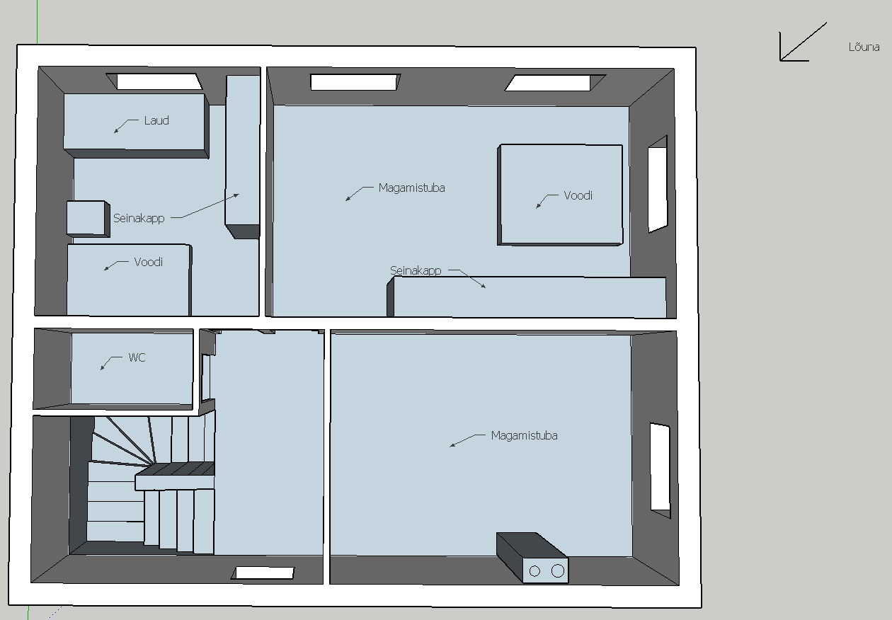
2. korruse kanali toru on hea küsimus - sellepärast foorumisse paningi üles, et kõikidele aspektidele ei oska veel mõelda. Kui vahelagi teha ca 40cm kõrgetest fermides, siis teoorias peaks ka sealt saama risti üle lae tuua ning vannitubba või esimese korruse WC kohale? Lõuna on peale kantud - nende vaadete puhul üleval paremal diagonaalis. St. akende põhisuunas. Akende suurus ja asukoht ei ole paigas. See on lihtsalt visand selleks, et saada paremini aru kuhu, mida ja palju mahub.
Sauna välja viimine oli alguses mõte, kuid rahaliselt ebaotstarbekas.tonxx kirjutas:1 korruse wc on tõesti `limbo`variant.
Mina teeks sauna asemele wc ning korraliku sauna ehitaks maja kõrvale.
Dushinurga arvelt teeks tehnoruumi suuremaks ja korstna paneks köögi/elutoa/pesuruumi vahelisse seina, et samasse saaks teha nii vent ja suitsulõõri.
Elutoas võiks olla kamin või kamina paigaldamise võimalus.
Dušinurk on koht, millega ei ole rahul. Liiga pikk ja kitsas. Tehnoruumi võiks siis ehk teha pikemaks, kuid veidi kitsamaks (Eeldusel, et saun säilib, siis kuhugi peab ikkagi dušinurk ka tulema.). Mure on aga selles, et kui korsten tuua kandva vaheseina äärde, siis saun jääb sellest marukaugele juba. Ei kujuta ette kas nt. läbi tehnoruumi mööda seina lae servast on lubatud ca 2,5m pikk horisontaalne suitsutoru ja kas see ka tõmbama hakkab jne. Seda, kas ventlõõr on vajalik või mitte on veel lahtine, kuna ventilatsioon on üks asi, mis pole veel täielikult selge. Kuna kalduvus on soojustagastusega keskvendi poole, siis saan aru, et seda ventlõõri ei kasutataks? Või vastupidi oleks see vajalik? Hetkel oli 200+160mm tandem moodulkorsten planeeritud. Kas sellisel juhul peaks lisaks kõrvale veel ühe 160mm auguga korstnamooduli paigaldama?
Tänud vastuste eest!
- laurit
- Ehitusspets

- Postitusi: 360
- Liitunud: 13 Jaan 2010, 23:15
- Asukoht: Harjumaa
- On tänanud: 3 korda
- On tänatud: 9 korda
Re: Kritiseerige projekti (pildid)
Lugemata postitus Postitas laurit »
2) Ventilatsiooniagregaat? Hetkel ei mahugi nagu kuskile
3) Pesumasin/kuivati?
4) Tuulekoda/eeskoda, mul on suurusega 2,2m x 3,6m ja tundub ka kohati väike, okei, mul on seal ka garderoobikapp. Ämmal on ca 1,5m x 1,5m ja see on ikka väga-väga kitsas. Mingid jalanõud mahuvad veel ära, aga üleriided küll mitte.
5) Kas köögi tööpind peab olema nii suur? Võibolla sinna duširuumi taha teha hoopis köögi poolelt miskine nurk, kuhu saad panna hoopis külmiku, mingi süvistatava kapi vms. Või siis kasutada seda katlamaja laienduseks (küttematerjali hoidmine, lae all vent seade).
-
ccc34
- külaline
Re: Kritiseerige projekti (pildid)
Lugemata postitus Postitas ccc34 »
Hea oleks kinnistuplaani ennast ka näha. Lõuna suunas võiks elutoas olla suurem lahtikäiv ava. Saaks õue nt terrassi ehitada.
Hetkel häirib elutuba-köögis see, et köögiala on jäetud niivõrd suureks. Elutoa ala saada osa sellest alast endale. Kuna maja on väike siis tundub söögilaua juurde jääv ala raiskmine. Vannituba pikk soolikas, ideaalis võiks ruumis olla aken (loomulik ventilatsioon ja valgus). WC jääb trepi alla ja on väga väike = üsna ahistav. Kui teed uut maja siis võiks eos sellised asjad välistada, hetkel on olemas see võimalus. Kui teed WC olemasolevasse majja trepialla olude sunnil siis on see teine asi.
Eeskoda on üsna pikk ja kitsas. Sinna ei saa üldse riideid panna, vä nagi. Ehk mis on niivõrd suure eeskoja mõte. Pigem teha laiem ruum koos riiete hoidmise võimalusega (garderoob). Mida vähem kasutut pinda seda parem, ehk koridori pind tuleks hoida minimaalsena. Esimese korruse WC juures oleva koridori saaksid kaotada ja teha selle arvelt suurema WC.
Teisel korrusel üks magamistuba väga väike võrreldes teisega. Saan aru, et toa suurus on tulnud trepihalli järgi.
Kui elutoa-köögi osa paika jätta siis muudaks ära kogu 1.korruse alumise osa lahenduse. Sissepääsu elutuppa teeks rohkem keskelt. Ideaalis muudaks sissepääsu asukohta majja.
Kui tahad siis võin ise midagi valmis kritseldada. Hea oleks teada ehitusala suurust ja ilmakaarte asetust ning sissepääsu kinnistule.
-
Küülaline
- Ehituspenskar

- Postitusi: 6634
- Liitunud: 02 Veebr 2009, 22:46
- On tänanud: 110 korda
- On tänatud: 149 korda
Re: Kritiseerige projekti (pildid)
Lugemata postitus Postitas Küülaline »
-
rst
- Ehitusspets

- Postitusi: 420
- Liitunud: 30 Okt 2013, 17:18
- On tänanud: 18 korda
- On tänatud: 18 korda
Re: Kritiseerige projekti (pildid)
Lugemata postitus Postitas rst »
Esik liiga väike. Tõsiselt liiga väike. Kui tuleb korraga 3-4 inimest tuppa, siis 2-3tk peavad juba edasi koridori liikuma, et riided saaks seljast võtta. Kui majas elab vähemalt 4 inimest, siis juba nende igapäevased riided ning jalanõud ei mahu sinna esikusse ära.
Tehnoruum on liiga väike, kuna sinna ei mahu hetkel isegi paari päeva puud tuppa. Lisaks uuri puukatla tootja poolesid ohutuskujasid. Enamus katlatootjaid tahab, et oleks juurdepääs katla taha, kuna seal puhastusluugid.
Dussinurk 1-1.2m lühemaks ning selle võrra tehnoruum suuremaks oleks mõistlik tegu.
Mitte ühtegi panipaika ei näe esimesel korrusel. (kuhu paned näiteks tolmuimeja või põrandaharja) Eeldan, et kunagi tuleb ka abihoone, sest jalgratta ja muruniiduki jaoks nagunii ruumi hetkel ei ole antud majas.
Hetkel tundub antud plaanilised lahendused kuidagi kipakad ning valed.
Kui plaanis võimalikult palju töid ise teha, siis pigem tee ühekordne hoone. Kokkuvõttes rahaliselt võib tulla isegi odavam. Hetkel peab kahel korrusel välja ehitama trepiala, mis kokku on kindlasti 15m2. Selle välja ehitamist millegi pärast ei arvestada kunagi. Pigem tee 15m2 väiksema kasuliku pinnaga ühekordne elamu. Oleneb kes kuidas materjale ja töökäsi leiab, kuid selline keskmine ehitushind jääb ikka 800€/m2. Lihtsal elamul kus ei ole väga erilisi materjale kasutatud.
Kirjuta googlisse moodulmajad. Moodulmaja tootjatel on väga palju näidis projekte üleval. Võibolla leiad sealt midagi endale, mida vastavalt oma vajadustele muudad.
-
bjorn
- Korralik postitaja

- Postitusi: 201
- Liitunud: 05 Veebr 2016, 13:27
- On tänanud: 5 korda
- On tänatud: 5 korda
Re: Kritiseerige projekti (pildid)
Lugemata postitus Postitas bjorn »
Vent agregaate käisin täna just vaatamas. Päris palju ruumi nõuavad. See ongi nüüd üheks põhjenduseks, miks peab tehnoruum suurem tulema ning kuhugi suunas peab teda paisutama.laurit kirjutas:1) Kus hoiad hooajalisi riideid? (suvel talveriided ning talvel suvisemad ajad). Kapid on päris väikesed. Jalanõude puhul saaks ära kasutada trepi alust (teha sahtlid vms panipaigad, netis pilte küllaga).
2) Ventilatsiooniagregaat? Hetkel ei mahugi nagu kuskile
3) Pesumasin/kuivati?
4) Tuulekoda/eeskoda, mul on suurusega 2,2m x 3,6m ja tundub ka kohati väike, okei, mul on seal ka garderoobikapp. Ämmal on ca 1,5m x 1,5m ja see on ikka väga-väga kitsas. Mingid jalanõud mahuvad veel ära, aga üleriided küll mitte.
5) Kas köögi tööpind peab olema nii suur? Võibolla sinna duširuumi taha teha hoopis köögi poolelt miskine nurk, kuhu saad panna hoopis külmiku, mingi süvistatava kapi vms. Või siis kasutada seda katlamaja laienduseks (küttematerjali hoidmine, lae all vent seade).
Pesumasin vannituppa tööpinna alla.
Tuulekoda - treppi saaks veidi kitsamaks teha ning selle läbi tuulekoda laiemaks. Samuti võib kaaluda tuulekoda lühemaks teha, sellega koos ka treppi nt. ca 30cm. Trepi pindala on päris korralik praegu, saaks vähemaga hakkama. Tuulekojas oligi mõte ainult selle päeva riideid hoida nagis, mitte kapis. Kui Tuulekoda üle 1.5m lai teha siis mahutaks kapi ka ehk sisse.
Köögi pind on tõesti suur, eks naise soovid mängus. Juba on plaanis köök L kujuliseks teha ning söögilaud sellesse osasse viia. See küll diivanit suuremaks ei tee, aga jätab vaba ruumi nn. elutoa ja köögi vahele. Samuti on idee üks nurk sealt varastada katlamaja/dusinurga poole. Hea idee! Kuna kandev sein, siis esialgu selle välistasin, kuid ilmselt lühikeste sillete puhul ei tohiks olla probleemi.
Tänud kaasa mõtlemast! Päris lõuna osas ei ole avaust, küll aga on 3m lai ja 2.1m kõrge avaus maja seina keskel mis vaatab kagu suunas (kohe söögilaua ääres). Vannitoas akent hetkel ei saanud, just sellepärast, et ta asukoht on nii nagu on. Nõustun, et soolikas. Sellepärast peab ehk kogu asetuse ümber vaatama. Teise korruse magamistoa suuruse tingis jah kandev sein ja trepikoda jms. Iseenesest asetasin just väiksesse tuppa kõik asjad mis seal olema peaks ning teoorias mahtusid ära küll.ccc34 kirjutas:Esmalt kiitused, et plaani jagad. Tavaliselt kui inimene midagi omaette tegema hakkab siis jääb ta oma mõtetega teatud asjadesse kinni. Kõrvalseisja pilk on tihtilugu abiks.
Hea oleks kinnistuplaani ennast ka näha. Lõuna suunas võiks elutoas olla suurem lahtikäiv ava. Saaks õue nt terrassi ehitada.
Hetkel häirib elutuba-köögis see, et köögiala on jäetud niivõrd suureks. Elutoa ala saada osa sellest alast endale. Kuna maja on väike siis tundub söögilaua juurde jääv ala raiskmine. Vannituba pikk soolikas, ideaalis võiks ruumis olla aken (loomulik ventilatsioon ja valgus). WC jääb trepi alla ja on väga väike = üsna ahistav. Kui teed uut maja siis võiks eos sellised asjad välistada, hetkel on olemas see võimalus. Kui teed WC olemasolevasse majja trepialla olude sunnil siis on see teine asi.
Eeskoda on üsna pikk ja kitsas. Sinna ei saa üldse riideid panna, vä nagi. Ehk mis on niivõrd suure eeskoja mõte. Pigem teha laiem ruum koos riiete hoidmise võimalusega (garderoob). Mida vähem kasutut pinda seda parem, ehk koridori pind tuleks hoida minimaalsena. Esimese korruse WC juures oleva koridori saaksid kaotada ja teha selle arvelt suurema WC.
Teisel korrusel üks magamistuba väga väike võrreldes teisega. Saan aru, et toa suurus on tulnud trepihalli järgi.
Kui elutoa-köögi osa paika jätta siis muudaks ära kogu 1.korruse alumise osa lahenduse. Sissepääsu elutuppa teeks rohkem keskelt. Ideaalis muudaks sissepääsu asukohta majja.
Kui tahad siis võin ise midagi valmis kritseldada. Hea oleks teada ehitusala suurust ja ilmakaarte asetust ning sissepääsu kinnistule.
Kui sa veidi viitsid asjaga sügavamalt tegeleda, siis võiksin sulle nt. meili peale saata aerofotod koos kritseldustega sinna peale jms info. Hetkel oleme veidi kinni maja asetuses ning sissepääsu suunas.
Nõustun, et veidi väike sai eeskoda. Kuna teisel korrusel on sama asetuse järgi tehtud WC, siis ei tahtnud seda ülemäära suureks paisutada, aga ehk peaks.rst kirjutas:Elutuppa mahub max 4 inimest tv vaatama, kui sedagi.
Esik liiga väike. Tõsiselt liiga väike. Kui tuleb korraga 3-4 inimest tuppa, siis 2-3tk peavad juba edasi koridori liikuma, et riided saaks seljast võtta. Kui majas elab vähemalt 4 inimest, siis juba nende igapäevased riided ning jalanõud ei mahu sinna esikusse ära.
Tehnoruum on liiga väike, kuna sinna ei mahu hetkel isegi paari päeva puud tuppa. Lisaks uuri puukatla tootja poolesid ohutuskujasid. Enamus katlatootjaid tahab, et oleks juurdepääs katla taha, kuna seal puhastusluugid.
Dussinurk 1-1.2m lühemaks ning selle võrra tehnoruum suuremaks oleks mõistlik tegu.
Mitte ühtegi panipaika ei näe esimesel korrusel. (kuhu paned näiteks tolmuimeja või põrandaharja) Eeldan, et kunagi tuleb ka abihoone, sest jalgratta ja muruniiduki jaoks nagunii ruumi hetkel ei ole antud majas.
Hetkel tundub antud plaanilised lahendused kuidagi kipakad ning valed.
Kui plaanis võimalikult palju töid ise teha, siis pigem tee ühekordne hoone. Kokkuvõttes rahaliselt võib tulla isegi odavam. Hetkel peab kahel korrusel välja ehitama trepiala, mis kokku on kindlasti 15m2. Selle välja ehitamist millegi pärast ei arvestada kunagi. Pigem tee 15m2 väiksema kasuliku pinnaga ühekordne elamu. Oleneb kes kuidas materjale ja töökäsi leiab, kuid selline keskmine ehitushind jääb ikka 800€/m2. Lihtsal elamul kus ei ole väga erilisi materjale kasutatud.
Kirjuta googlisse moodulmajad. Moodulmaja tootjatel on väga palju näidis projekte üleval. Võibolla leiad sealt midagi endale, mida vastavalt oma vajadustele muudad.
Tehnoruumi kohta juba kirjutasin, et ilmselt peab veel suurem olema.
Kuna olemas nii garaaž kui kõrvalhoone, siis jalgrattad jms ei ole tõesti probleemiks. Siiski võimalik üks panipaik tolmuimeja jms jaoks peaks juures olema - nt. trepialune siiski.
Trepi info õige - hetkel läheb 13-14 ruutu sinna alla kaduma (osa trepialust saaks siiski kasutada panipaigana). Küll aga on ühekordse maja aluspind, st. vundament ning katus päris palju suuremad ning üldse mitte odavad. Olen ka varem selle üle juurelnud, et kumb siis mõistlikum on. Siiamaani olen lugenud, et kahekordne ON soodsam, ma ei tea, kas seal juures trepi maksumus ning kadunud pinda on võetud korrektselt arvesse või mitte. Seega küsimus õhus - ehk peakski ühekordset plaanima? Ruumi tegelikult on. Moodulmajade projekte uuritud ning see antud versioon ongi kahe-kolme näidisprojekti pealt kokku vaadatud siit-sealt.
-
Külaline
- külaline
Re: Kritiseerige projekti (pildid)
Lugemata postitus Postitas Külaline »
Samas mulle meeldib oma maakodus sügise poole või ka lausa sügisel istuda verandal ja vaadata loojuvat päikest, sellel hooneprojektil seda võimalust pole. Kui see on mingi muu hoonega lahendatud siis pole ju probleemi.
Tegelikult olekski vaja näha kogu krunti ja vaat et isegi kaugemale, ja mõtteid ideid muude lahenduste osas (kui kaugel on kavandatav puukuur uuest saunast, jajaja, viitsite muidugi "kilomeeter" kõmpida puid tooma!) Kuhu jääb mõni suur varju pakkuv puu jne ... naabri aknad kah!
-
bjorn
- Korralik postitaja

- Postitusi: 201
- Liitunud: 05 Veebr 2016, 13:27
- On tänanud: 5 korda
- On tänatud: 5 korda
Re: Kritiseerige projekti (pildid)
Lugemata postitus Postitas bjorn »
Kollasega tähistatud hooned mida enam ei eksisteeri vanal aerofotol.
Sinisega vana maja asukoht mis läheks pärast uue valmimist lammutamisele ja pikas perspektiivis grillinurk vms lahendus peaks sinna asukohta tulema.
Punasega märgitud uus puukuur ja uue maja potentsiaalne asukoht. Kahekordne maja väiksema aluspinnaga oleks mõistlikum, sest siis jää kõrvalhoone nii tugevalt vaadet varjama.
Ortofoto on siis põhja-lõuna suunaline nagu ikka. Krundi piir ida pool on sõidutee, põhja ja ida pool piiri ei näe ja lõunas jookseb pildi all osas puude vahelt.
-
Urmas
- autodidakt
- Postitusi: 13181
- Liitunud: 17 Apr 2009, 23:51
- On tänanud: 408 korda
- On tänatud: 446 korda
Re: Kritiseerige projekti (pildid)
Lugemata postitus Postitas Urmas »
Saunast. Mul tuttav, kelle majas olen teinud siseviimistlust. Tal maja 240 või 280m2(täpselt ei mäleta) ja sauna majas ei ole. Rääkis ükskord, et kui tema külalised on temalt küsinud, et kus on saun, siis laiutab käsi ja ütleb, et lihtsalt ei mahtunud ära ja tuleb eraldi hoonena.
Nagu eelkriitikud on maininud, siis mõtle panipaikadele/kolikambrile, kus igatsugu ülearust sodi hoida! Sa võib-olla hetkel lihtsalt ei oska ette kujutada seda vajalike/mittevajalike esemete hulka nagu olmetehnika pakkekastid, millel veel garantii jms.
-
bjorn
- Korralik postitaja

- Postitusi: 201
- Liitunud: 05 Veebr 2016, 13:27
- On tänanud: 5 korda
- On tänatud: 5 korda
Re: Kritiseerige projekti (pildid)
Lugemata postitus Postitas bjorn »
Õige, et üks panipaik esimesel korrusel on puudu. Loodan ühe kasutaja peale, kes teeb mõne alternatiivse visandi nagu ta ise välja pakkus. Ühel hetkel on endal ideed otsas ja sellepärast ongi foorum hea koht kust alternatiive leida.
-
klots
- külaline
Re: Kritiseerige projekti (pildid)
Lugemata postitus Postitas klots »
Saunale kindlasti tee aken, ilus kui õhtupäike paistab leiliruumi.
-
to klots
- külaline
Re: Kritiseerige projekti (pildid)
Lugemata postitus Postitas to klots »
Diivanil teleka vaatmiseks ei pea mingit erilist nõudepesumasinat ja või külmkappi ostma. Või siis vastupidi, telekale külge ühendada sobilik helisüsteem?
Sauna osas igati nõus.
Ida pool asuv sõidutee paneb kogu asja paika. Õnneks seal pool ka mõned suuremad puud kasvamas näha.
-
Külaline
- külaline
Re: Kritiseerige projekti (pildid)
Lugemata postitus Postitas Külaline »
Praetud ja marineeritud jääräim on maitselt väga hea, mulle maitseb, aga selle praadimise lõhn telekat vaadates igatahes mind häirib, keera või hääl 100% peale. Köök ei pea olema eraldatud suletava uksega, aga täiesti avatud köök-elutoa puhul on söögitegemise lõhnad siiski paratamatus, olgu köögikubu tõmme kui tahes hea.to klots kirjutas:Omamoodi on avatud köök siiski ka praktiline. Tuleb omal nahal ära proovida!
Urmas
-
bjorn
- Korralik postitaja

- Postitusi: 201
- Liitunud: 05 Veebr 2016, 13:27
- On tänanud: 5 korda
- On tänatud: 5 korda
Re: Kritiseerige projekti (pildid)
Lugemata postitus Postitas bjorn »
Tuulekoda sai 1.5m laiuseks, WC ja panipaik läksid ühte ruumi nii et panipaik asuks trepi all ja WC täiskõrguses ruumis. Sellega läks ka esiku osa väiksemaks ehk väiksem kasutu pind. Trepp on 1,2m laiade astmetega. Alla selle tundus, et võib kitsaks minna.
Ühtlasi kadus saun üldse joonistelt ning suuremaks läks nii tehnoruum (nüüd ca 10m2) kui ka vannituba (12m2).
Köök muutus L-kujuliseks ning söögilaud mahub rohkem köögi osasse nüüd.
Suur terassi aken/uks liikus samuti rohkem köögi poole, et anda elutoale mõõtu juurde. Samuti läks sellega diivan pikemaks.
Teist korrust ei ole veel ümber teinud kuna teist korrust mõjutab vähe ainult trepi mõnikümmend cm.
Tegelikult on jätkuvalt küsimuseks korstna paiknemine praeguse skeemi kohaselt. Kas mööda välisseina seest poolt on aksepteeritav lahendus või mitte? Kui maja keskele poole tuua kandva seina äärde, siis peaks sissepääsud ümber mängima, mis ei oleks iseenesest probleemiks.
Hetkel siis puudu visandilt veel uks tehnoruumi ja vannitoa vahel ning vannitoa aken.
Muus osas ideid või ettepanekuid?
-
Külaline
- külaline
Re: Kritiseerige projekti (pildid)
Lugemata postitus Postitas Külaline »
* tehnoruum ja saun majast välja.
* puukatla asemel mõtle õhk-vesi soojuspump jääb ära akupaagi vajadus
* elutuppa hädakütteks kamin ja ventseade pööningule .
* eeskoda ja treppihall kokku teha lubaks saada normaalse suurusega elutoa .
* köök tõsta sinna kus hetkel on elutuba planeeritud ja ainult ühte seina
* vannituba ning vc liiguta sinna kus on tehnoruum ja panipaik/garderoob jäta täitsa eraldi ruumiks
teise korruse ruumide suurused ei ole proportsioonis, väiksed toad ja liiga suured toad ei ole mõistlikud
-
Külaline
- külaline
Re: Kritiseerige projekti (pildid)
Lugemata postitus Postitas Külaline »
Kõik agregaadid on remondiks vajaliku ligipääsuga ja vahetamiseks niimoodi ühekaupa väljavõetavad, et teiste seadmete tööd ei segaks.
Teises majas tegin trepi alla. 1000L akupaak tarbeveesoojusvahetiga, õhk/vesi soojapumba siseosa, 80L boiler, paisupaagid 100+8L, tarbeveekollektorid, põrandakütte kollektor, tsirk.pumbad, elektri ja automaatikakilp, 2tk 3,6kW päikseinverterid, reservtoite UPS +200Ah aku, tolmuimeja koht, tulekustuti ja riiete nagi.
Ise arvutasin, et kui kalliks läheks, iseseisva tuletõkketsooni (katlaruum), ehitamine ühe toa asemele? Ja leidsin, et kui hästi planeerida saab teha tehnoruumi väiksema või üldse loobuda sellest.
Sissepääs proovi teha kagu suunda - kui töölt tuled siis on ukse eest, trepilt, jää ära sulanud.
Avatud köögi teema on nii ja naa. Oli mul kunagi elutuba 36m2 ja eraldi köök 32m2. Kui keegi külla tuli siis lõpuks oli kõik rahvas ikka köögis. Suur tuba jäi tantsuplatsiks.
Ehk teha hoopis korraliku suurusega "magamis"toad ja loobuda "suuresttoast" suure köögi kasuks?
Telekad on tänapäeval nii odavad, et need on nagunii igas toas ja köögis ja vaatad seal kuhu külje maha paned.
ping
-
Tonxx
- külaline
Re: Kritiseerige projekti (pildid)
Lugemata postitus Postitas Tonxx »
Selle nimel võid jätta esialgu teise korruse välja ehitamata.
Kui lapsed suremaks kasvavad ja soovivad oma tuba, siis aitavad ehitada.
-
monks
- külaline
Re: Kritiseerige projekti (pildid)
Lugemata postitus Postitas monks »
* tehnoruum ja saun majast välja.
[/quote]
Muhhahhaa, köök ja vannituba ka majast välja
Mine “Projekteerimine, projektid”
- Ehitusfoorum
- ↳ Üldfoorum
- ↳ Ahjud, kaminad, korstnad
- ↳ Aiad, väravad
- ↳ Aknad, uksed
- ↳ Betoon ja betoonitooted
- ↳ Ehitustööriistad
- ↳ Ehitusmaterjalid
- ↳ Elekter, elektriseadmed
- ↳ Energiamärgis ja energiaaudit
- ↳ Fassaadide arutelu
- ↳ Katused, laed
- ↳ Hüdroisolatsioon
- ↳ Kaevud
- ↳ Konstruktsioonid, seinad
- ↳ Küttesüsteemid
- ↳ Palkmajad
- ↳ Projekteerimine, projektid
- ↳ Põrandad
- ↳ Puit ja puidutooted
- ↳ Restaureerimine
- ↳ Seadusandlus
- ↳ Soojustus, isolatsioon
- ↳ Saunad, dussiruumid, vannitoad, sanitaartehnika
- ↳ Siseviimistlus, värvid, plaatimistööd
- ↳ Ventilatsioon
- ↳ Veevarustus, kanalisatsioon, käimlad
- ↳ Vundamendid
- ↳ Naljanurk
- ↳ Arhiiv
- Ärifoorumid
- ↳ Otsin tööd
- ↳ Pakun tööd
- ↳ Ostu-müügifoorum
- ↳ Annan/võtan rendile
- ↳ Hinnapäring