Suur vundament ja väikene maja
siia käivad üldised teemad, mis teistesse foorumitesse ei sobi
Suur vundament ja väikene maja
Lugemata postitus Postitas Tanelvv »
Kuidas lahendada olukord, kus 30 aastat tagasi on rajatud täiskeldriga vundament, perimeeter on valatud (sees suured kivid ja armatuur) seespool on kruus ja osaliselt ka vaheseinte taldmikud
Vundament asub künka otsas ja on maapinnast väljas 30 cm (taldmikust on kõrgus 2 m - 2,7m )
Vihamsemal perioodil on peale sadu vesi üsna koheselt kadunud. müürid silmaga vaadates vajunud 7 pragunenud pole
Kuna endal nii suurt maja (kogu perimmeeter umb 200M2 (10x21m) kindlasti tarvis pole.
Kui nüüd sinna peale paneelid panna ja maja kuni 60m2, siis kuidas seadus seda tõlgendab? kas maaalusetele ehitistele on ka piirangud?
head korralikku keldrit esimese hooga ei tahaks raha eest ostetava täitematerjaliga täitma ka hakata.
Vundament asub künka otsas ja on maapinnast väljas 30 cm (taldmikust on kõrgus 2 m - 2,7m )
Vihamsemal perioodil on peale sadu vesi üsna koheselt kadunud. müürid silmaga vaadates vajunud 7 pragunenud pole
Kuna endal nii suurt maja (kogu perimmeeter umb 200M2 (10x21m) kindlasti tarvis pole.
Kui nüüd sinna peale paneelid panna ja maja kuni 60m2, siis kuidas seadus seda tõlgendab? kas maaalusetele ehitistele on ka piirangud?
head korralikku keldrit esimese hooga ei tahaks raha eest ostetava täitematerjaliga täitma ka hakata.
Re: Suur vundament ja väikene maja
Lugemata postitus Postitas Tanelvv »
Ma arvan, et kui isegi kunagi midagi oli, siis on see aegunud - 20 aastat pole kindlasti selle kallale enam keegi midagi teinud. Küll on aga projekt (originaali kujul olemas). Seletuskirjas kirjas Aiamaja kasulik pind 43,2 m2
Seega eeldan, et ühtegi luba pole.
Seega eeldan, et ühtegi luba pole.
Re: Suur vundament ja väikene maja
Lugemata postitus Postitas Tanelvv »
Kuna tegu peaks olema mingitsorti tüüplahendusega? peal on kirjas lihtsalt "projekt 6"
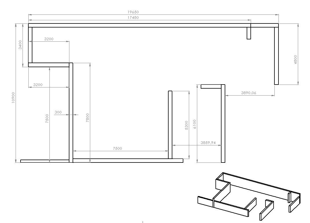
panen manusesse ka kaks pilti - üks olukorrast ja teine möödulindiga üles joonestatud möödud.
Ehk keegi tunneb või aimab ära, milline võiks olla sellisel vundamedil olev maja, siis oleks väga õnnelik mõne viite eest
panen manusesse ka kaks pilti - üks olukorrast ja teine möödulindiga üles joonestatud möödud.
Ehk keegi tunneb või aimab ära, milline võiks olla sellisel vundamedil olev maja, siis oleks väga õnnelik mõne viite eest
-
xxx111
- külaline
Re: Suur vundament ja väikene maja
Lugemata postitus Postitas xxx111 »
Aga miks on vana ehitusluba nii oluline? Saab ju uue taotluse sisse anda?
Ilmselgelt on tegemist pehmelt öeldes raiskamisega hakates sellele vundamendile peale "aretama"...
Ilmselgelt on tegemist pehmelt öeldes raiskamisega hakates sellele vundamendile peale "aretama"...
-
suvaline
- Ehitusveteran

- Postitusi: 1025
- Liitunud: 20 Jaan 2019, 18:17
- On tänanud: 13 korda
- On tänatud: 30 korda
Re: Suur vundament ja väikene maja
Lugemata postitus Postitas suvaline »
Kuidas siiski ehitada erinevates keeluvööndites? Tundub, et Te ei peagi teadma ...xxx111 kirjutas: 04 Aug 2020, 18:05 Aga miks on vana ehitusluba nii oluline? Saab ju uue taotluse sisse anda?
Ilmselgelt on tegemist pehmelt öeldes raiskamisega hakates sellele vundamendile peale "aretama"...
-
xxx111
- külaline
Re: Suur vundament ja väikene maja
Lugemata postitus Postitas xxx111 »
Ma ei tea kas midagi jäi kahe silma vahele kuid ma ei näe ühtegi viidet keeluvööndile...Kuidas siiski ehitada erinevates keeluvööndites? Tundub, et Te ei peagi teadma ..
Viimati muutis xxx111, 04 Aug 2020, 20:19, muudetud 1 kord kokku.
-
T25
- Ehitusveteran

- Postitusi: 1288
- Liitunud: 14 Mai 2007, 13:15
- On tänanud: 5 korda
- On tänatud: 16 korda
Re: Suur vundament ja väikene maja
Lugemata postitus Postitas T25 »
Tuleb nõustuda xxx111-ga, et seda vundamenti pole mõtet edasi putitada.
Re: Suur vundament ja väikene maja
Lugemata postitus Postitas Tanelvv »
Kuna lähima 5-10 aasta jooksul pole plaani sinna midagi suuremahulist ehitama hakata (praeguse seisu järgi)
Siis ongi kahepidiseid arvamusi.
Miinusteks on see, et vundament on osaliselt erineva kõrgusega ja soojustamata.
Plussideks on see, et see on juba olemas, ja on valdavalt enamuse aja kuiv
Kui ehitama hakkaks, siis sinna keskmise ruudu peale (esialgne hinnang oli (15 000 €) valada uus võõ ja paneelid peale. - sinna, kas siis juba moodulmaja või elementmaja peale
Täiskelder, koos suure ukse ja ligipääsuga mulle iseeensest meeldiks, jääks ära garaazi ja töökoja vajadus hoovi peal.
Seni, aga kas konserveeriks kuidagi, kasutaks seinu ära varjualuse osalise konstruktsioonina.
Kas oleks mõistlik kuidagi väikesed katuseharjade moodi asjad vundamendile peale teha?
Seni kuni veel päris kindel pole, tasub elada selle natukene silma riivava pooliku vundamendiga ja kasutada selle olemasolu ära - kinni jõuan seda ajama hakata ka ennem ehitust?
Siis ongi kahepidiseid arvamusi.
Miinusteks on see, et vundament on osaliselt erineva kõrgusega ja soojustamata.
Plussideks on see, et see on juba olemas, ja on valdavalt enamuse aja kuiv
Kui ehitama hakkaks, siis sinna keskmise ruudu peale (esialgne hinnang oli (15 000 €) valada uus võõ ja paneelid peale. - sinna, kas siis juba moodulmaja või elementmaja peale
Täiskelder, koos suure ukse ja ligipääsuga mulle iseeensest meeldiks, jääks ära garaazi ja töökoja vajadus hoovi peal.
Seni, aga kas konserveeriks kuidagi, kasutaks seinu ära varjualuse osalise konstruktsioonina.
Kas oleks mõistlik kuidagi väikesed katuseharjade moodi asjad vundamendile peale teha?
Seni kuni veel päris kindel pole, tasub elada selle natukene silma riivava pooliku vundamendiga ja kasutada selle olemasolu ära - kinni jõuan seda ajama hakata ka ennem ehitust?
-
xxx111
- külaline
Re: Suur vundament ja väikene maja
Lugemata postitus Postitas xxx111 »
Infot pole krundi suuruse / vaba pinna jms kohta, kuid: miks peaks ehitama olemasoleva peale?
Kui Sa loodad hinnavõitu paneelidega katmisel ja sinna peale ehitamisel siis mina kahtlen sügavalt
Lisaks piirab olemasolev vundament planeeringut
Ning lisaks oleks tehnilised lahendused mõttetult keerukamad / kallimad
Kui Sa loodad hinnavõitu paneelidega katmisel ja sinna peale ehitamisel siis mina kahtlen sügavalt
Lisaks piirab olemasolev vundament planeeringut
Ning lisaks oleks tehnilised lahendused mõttetult keerukamad / kallimad
-
Digipealkiri
- Uus kasutaja

- Postitusi: 3
- Liitunud: 05 Aug 2020, 18:19
Re: Suur vundament ja väikene maja
Lugemata postitus Postitas Digipealkiri »
Vaatake igaks juhuks ehitusregistrist järgi, vanade asjade puhul võib igasuguseid üllatusi ette tulla...
Mu nö peamaja vundament on ehitusregistri järgi abihoone, millel isegi kasutusluba olemas
Mõtlen et peaks sinna saun/kuuri ehitama, sest registri järgi see oleks ok
Mu nö peamaja vundament on ehitusregistri järgi abihoone, millel isegi kasutusluba olemas
Mõtlen et peaks sinna saun/kuuri ehitama, sest registri järgi see oleks ok
Hüppa
- Ehitusfoorum
- ↳ Üldfoorum
- ↳ Ahjud, kaminad, korstnad
- ↳ Aiad, väravad
- ↳ Aknad, uksed
- ↳ Betoon ja betoonitooted
- ↳ Ehitustööriistad
- ↳ Ehitusmaterjalid
- ↳ Elekter, elektriseadmed
- ↳ Energiamärgis ja energiaaudit
- ↳ Fassaadide arutelu
- ↳ Katused, laed
- ↳ Hüdroisolatsioon
- ↳ Kaevud
- ↳ Konstruktsioonid, seinad
- ↳ Küttesüsteemid
- ↳ Palkmajad
- ↳ Projekteerimine, projektid
- ↳ Põrandad
- ↳ Puit ja puidutooted
- ↳ Restaureerimine
- ↳ Seadusandlus
- ↳ Soojustus, isolatsioon
- ↳ Saunad, dussiruumid, vannitoad, sanitaartehnika
- ↳ Siseviimistlus, värvid, plaatimistööd
- ↳ Ventilatsioon
- ↳ Veevarustus, kanalisatsioon, käimlad
- ↳ Vundamendid
- ↳ Naljanurk
- ↳ Arhiiv
- Ärifoorumid
- ↳ Otsin tööd
- ↳ Pakun tööd
- ↳ Ostu-müügifoorum
- ↳ Annan/võtan rendile
- ↳ Hinnapäring