Abihoone küttelahendus
Abihoone küttelahendus
Lugemata postitus Postitas piprakurk »
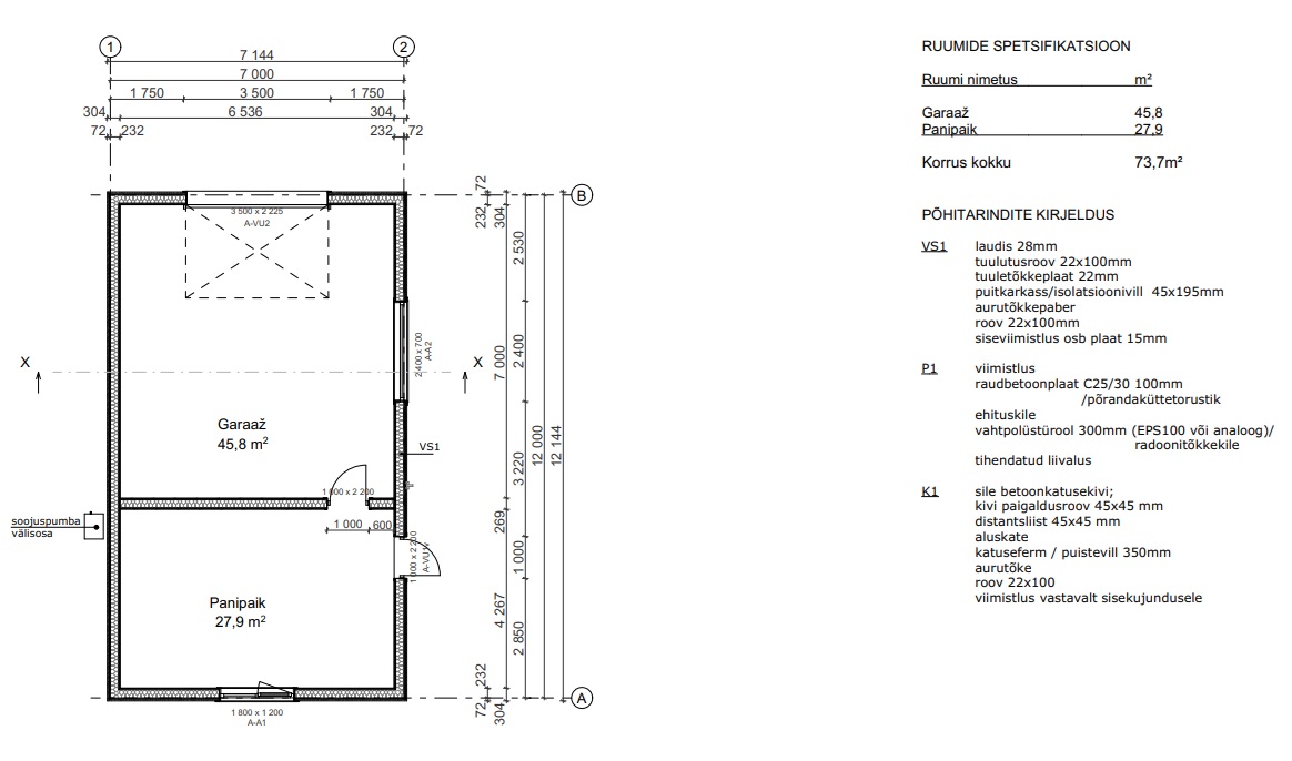
Abihoone 70m2, soojustatud, koosneb kahest ruumist garaazh ja väike töökoda. Ei soovi aastaringselt kütta, vaid hoida hilissügisesel ja talvisel ajal stabiilselt 8-10 kraadi sees, kuna hoones on vesi sees. Abihoone asub põhihoonest ca 10m eemal. Põhihoonet hakkab kütma maasoojuspump horisantaalse kontuuriga.
Millist küttelahendust kasutada, soov hoida jooksvad kulud võimalikult madalad ja et oleks pikas plaanis optimaalne:
a) Vesipõrandküte, mis tuua peamaja tehnoruumis olevast maaküttepumbast.
b) Lokaalne õhk-vesi
c) Lokaalne õhk-õhk
tänan ette neid kes asjalikke kommentaare panevad!
-
Vko
- Ehitusspets

- Postitusi: 649
- Liitunud: 20 Veebr 2024, 13:15
- On tänanud: 5 korda
- On tänatud: 18 korda
Re: Abihoone küttelahendus
Lugemata postitus Postitas Vko »
Re: Abihoone küttelahendus
Lugemata postitus Postitas piprakurk »
Elektrikütte peale pole mõelnud, samas pole pädevust arvutusi teha, aga ei tundu usutav, et see võiks soodsaim variant olla.
-
EH.INS.
- Ehituspenskar

- Postitusi: 4241
- Liitunud: 29 Juul 2024, 10:56
- On tänanud: 1 korda
- On tänatud: 96 korda
Re: Abihoone küttelahendus
Lugemata postitus Postitas EH.INS. »
Pigem kalduks arvama, et nii ongi
Aga arvutuste teema - nt mis sisetemp on min vajalik ja ruumid eraldi
Sealt tulevad kraadpäevad, sealt tuleb kWh
Isiklikult endale tehes kindlalt otseelekter ja mõlemad ruumid min temp - üleüldse kaaluks milleks küte...
-
kunn24
- Ehituspenskar

- Postitusi: 4669
- Liitunud: 11 Veebr 2018, 14:45
- On tänanud: 50 korda
- On tänatud: 157 korda
Re: Abihoone küttelahendus
Lugemata postitus Postitas kunn24 »
-
ping
- Ehituspenskar

- Postitusi: 6613
- Liitunud: 28 Jaan 2016, 10:35
- On tänanud: 120 korda
- On tänatud: 308 korda
Re: Abihoone küttelahendus
Lugemata postitus Postitas ping »
Hoidmaks mõnda meetrit veetoru külmumast, siis see toru varustatakse küttekaabliga (ca 20W) ja kaetakse soojusisolatsiooniga, mitte ei ole vaja kogu hoonet kütta.piprakurk kirjutas: 30 Nov 2025, 23:48 ..... Ei soovi aastaringselt kütta, vaid hoida hilissügisesel ja talvisel ajal stabiilselt 8-10 kraadi sees, kuna hoones on vesi sees. ....
... Millist küttelahendust kasutada, soov hoida jooksvad kulud võimalikult madalad ...
Kui garaaži ust iga päev ei avata ja sobib ka "üle nulli" sisetemp, siis ei ole garaaži põranda alla soojustust vaja, sest maapinnast tuleb pidevalt "üle nulli temperatuuri".
-
Kalvis
- Ehituspenskar

- Postitusi: 11638
- Liitunud: 03 Veebr 2008, 14:02
- On tänanud: 4 korda
- On tänatud: 336 korda
Re: Abihoone küttelahendus
Lugemata postitus Postitas Kalvis »
1. õhk-õhk SP (kui kasutad tihti)
2. otsene elektriküte (odavaim ehitada, kui harva kasutad siis OK)
3. saunahi, bullerjan, suvaline kamin, bursuika jne. (sõltub kui odavalt kätte saad). Korsten hädaga vent.torust.
Kõigil on üks ja sama lähenemine - kui viibid ruumis, lükkad töösse!
-
EH.INS.
- Ehituspenskar

- Postitusi: 4241
- Liitunud: 29 Juul 2024, 10:56
- On tänanud: 1 korda
- On tänatud: 96 korda
Re: Abihoone küttelahendus
Lugemata postitus Postitas EH.INS. »
Siis teeme selgeks mis on min temp - ja mõlemas ruumis
-
Kalvis
- Ehituspenskar

- Postitusi: 11638
- Liitunud: 03 Veebr 2008, 14:02
- On tänanud: 4 korda
- On tänatud: 336 korda
Re: Abihoone küttelahendus
Lugemata postitus Postitas Kalvis »
-
EH.INS.
- Ehituspenskar

- Postitusi: 4241
- Liitunud: 29 Juul 2024, 10:56
- On tänanud: 1 korda
- On tänatud: 96 korda
Re: Abihoone küttelahendus
Lugemata postitus Postitas EH.INS. »
Ja joonisel pole ka näha midagi mis vett vajaks?
-
A23
- Ehitusveteran

- Postitusi: 1971
- Liitunud: 05 Mär 2023, 01:06
- On tänanud: 25 korda
- On tänatud: 61 korda
Re: Abihoone küttelahendus
Lugemata postitus Postitas A23 »
-
EH.INS.
- Ehituspenskar

- Postitusi: 4241
- Liitunud: 29 Juul 2024, 10:56
- On tänanud: 1 korda
- On tänatud: 96 korda
Re: Abihoone küttelahendus
Lugemata postitus Postitas EH.INS. »
Soojuspump on peal ja neid asku pole
Aga küsimus jääb ikka - milleks?
-
Kalvis
- Ehituspenskar

- Postitusi: 11638
- Liitunud: 03 Veebr 2008, 14:02
- On tänanud: 4 korda
- On tänatud: 336 korda
Re: Abihoone küttelahendus
Lugemata postitus Postitas Kalvis »
-
kunn24
- Ehituspenskar

- Postitusi: 4669
- Liitunud: 11 Veebr 2018, 14:45
- On tänanud: 50 korda
- On tänatud: 157 korda
Re: Abihoone küttelahendus
Lugemata postitus Postitas kunn24 »
-käte- ja näopesuks (eriti, kui midagi silma satub)
-survepesurile
-vahel ka kastmiseks
-käiatavate või kuumutatavate detailide jahutamiseks jne, kuid juba need on argumendid, et kui plaan mingeidki torusid / juhtmeid hoonete vahele paigaldada, võiks vee ka tuua.
Küttetorudki tuleks pista samasse trassi. Need torud tuleb isoleerida.
-
A23
- Ehitusveteran

- Postitusi: 1971
- Liitunud: 05 Mär 2023, 01:06
- On tänanud: 25 korda
- On tänatud: 61 korda
Re: Abihoone küttelahendus
Lugemata postitus Postitas A23 »
Kuna teemaomanik saladust ei avalda, jääb meil üle vaid oletada...EH.INS. kirjutas: 01 Dets 2025, 13:26 Nojah...
Soojuspump on peal ja neid asku pole
Aga küsimus jääb ikka - milleks?
Pakun, et ruumi sihtotstarve muutus peale projekti valmimist.
Naine ei luba õlikolli või saepurutonti (sõltuvalt mis tegevused on töökojas primaarsed) eluruumidesse siseneda ja seetõttu töökojas ka pesemesvõimaluse nõue
-
Prill
- Ehitusveteran

- Postitusi: 1736
- Liitunud: 27 Veebr 2017, 10:36
- On tänanud: 7 korda
- On tänatud: 96 korda
Re: Abihoone küttelahendus
Lugemata postitus Postitas Prill »
Postituses väidetakse põhiprojekti tegemise staadiumis ollakse.A23 kirjutas: 02 Dets 2025, 08:01 Pakun, et ruumi sihtotstarve muutus peale projekti valmimist.
Naine ei luba õlikolli või saepurutonti (sõltuvalt mis tegevused on töökojas primaarsed) eluruumidesse siseneda ja seetõttu töökojas ka pesemesvõimaluse nõue![]()
Aga sellised teemad võivad kerida pisiasjust, alguses tekib mõte lisaks elamisele vaja kuuri&abihoonet kus jalgrattaid, rehasid-labidaid, suverehve, aiatoole, tööriistu jm eramuga kaasaskäivat kola hoiustada. Natuke mõeldes võiks see olla rohkem kinnine abihoone aga mitte kuur, võibolla tahaks varju all ka jahedamal perioodil midagi toimetada auto kallal, mööblit restaureerida, miskit hobi edendada vm.
Veega on veel lihtsam, piisab uitmõttest, kuidas tore oleks kui saaks voolikust või survepesurist porist autot või sammalduvat õuemööblit kasta ja edasi kipub loogiline rada olema, kui veetoru juba tuua, võiks kraanikauss ka olla käte ja asjade loputamiseks, kui "majas vesi sees", ei tohiks see ära külmuda. Järelikult onnikese soojustamine aitab, aga mingi piirini, pakasega kütteta hoonesse kipub külm sisse trügima, kui mitte iga aasta siis külmad talved ikka.
Ja järsku ollakse mõtte eest, et mingi küttevariant peaks olema.. ja nii loemegi teemat ja üritame aidata
Asjalikke soovitusi laias skaalas olnud, midagi lisada ei oska. Suuresti oleneb kuidas ruume talvel kasutatakse. Kui plaanis seal pikemalt toimetada ei ole ja ainus küsimus on hoida ära veetorude külmumine&riknemine, oleks küttekaabli lisamine asjakohane. Kui veetorud on piiratud ruumis&kapis, müüakse ka odavaid "külmavalvureid", mis sisult termostaadiga otseelektriküttekehad, mis seatud nt 5C temperatuuri hoiavad.
Kui on plaan soojemat 10-15C hoida, tekiks küsimimus mis otstarbel.
Muidu nt tahtes midagi soojustatud ent kütteta ruumis toimetada, ajab ruumi üleskütmiseks (eks oleneb ruumi suurusest) asja ära ka 2kW ~30€ soojapuhur. Ehk kütad ainult siis kui toimetada, veetorude külmumise eest hoolitseb küttekaabelt või "külmavalvur"
Re: Abihoone küttelahendus
Lugemata postitus Postitas piprakurk »
Vastan mõnele küsimusele, mis siin tõstatud. Vee osas - oli plaan tuua peamajast veetrass ja teha väljaviik (külmumiskraaniga), et kasutada seda siis kastmiseks, survepesururiga toimetamiseks, ka õues kätepesuks. Lugedes kõiki neid kommentaare, tundub, et tegelikult võiks abihoonesse vett mitte tuua (kastmisveele ja pesurile saab ka vett nt peamaja väljaviigust või siis sauna/tünni juurest, kus ka veetrass olemas.
Ning kui vett seal enam ei ole, siis nüüd tundub endalegi kõige mõistlikum lahendus õhk-õhk pump ja siis vastavalt vajadusele kütta. Kuigi käisin paaris ettevõttes konsultatsioonil ja seal pakuti ikkagi ka seda lahendust, et peamaja pumbast tuua vesi abihoonesse, et lihtsalt tsipa võimsamat maasoojuspumpa vaja. See on muidugi üsna kulukas nende eelisoleeritud torude näol (50-80€/m). See aga muidugi eeldaks, et kogu külma aja peab seda abihoonet kütma. Ise mõtlesin veel seda, et kui südatalvel elekter peaks ära kaduma (mida juhtub tihti, asume liini lõpus, metsa sees, hajaasustuses), et siis külmuvadki need põrandakütte torud ära. Eks peab muidugi elektirgenaraatori ka soetama.
Õhkõhk pumba kasuks räägib ka see, et kui naine tahab mööblit restaureerida või ise mingit puutööd nokitseda vms, siis saab kohe kiirelt sooja sisse, samas põrandaküttega 10 kraadilt 20-ni võtab omajagu aega, inerts suur.
Teisalt jälle on ÕÕ väidetavalt ca 50% kallim kui maasoojuspumba ja vesiküttega. Kui keegi suudaks täpselt arvutada mis on optimaalne, siis oleks eriti tore, eks pean otsima pädeva projekteerija.
Ja, Prill, tabasid väga hästi naelapea pihta - see mõttekäik on täpselt meil selline olnud, nagu kirjutasid!
-
Walter2
- Ehitusguru

- Postitusi: 745
- Liitunud: 11 Juun 2016, 21:54
- On tänanud: 10 korda
- On tänatud: 35 korda
Re: Abihoone küttelahendus
Lugemata postitus Postitas Walter2 »
Küttesüsteemides saab ka külmumiskindlat agensi kasutada (nt. glükooli baasil). Vanal ajal kui midagi saada ei olnud aga kõigil oli valati keskkütteradiaatoritega süsteemidesse tosooli sisse kui talvel ei tahetud kütta.piprakurk kirjutas: 02 Dets 2025, 13:51 ..kui südatalvel elekter peaks ära kaduma (mida juhtub tihti, asume liini lõpus, metsa sees, hajaasustuses), et siis külmuvadki need põrandakütte torud ära.
Re: Abihoone küttelahendus
Lugemata postitus Postitas piprakurk »
-
ping
- Ehituspenskar

- Postitusi: 6613
- Liitunud: 28 Jaan 2016, 10:35
- On tänanud: 120 korda
- On tänatud: 308 korda
Re: Abihoone küttelahendus
Lugemata postitus Postitas ping »
Unustage ära suvalise törlöndi kasutamine kaasaegses kütteseadmes.Walter2 kirjutas: 02 Dets 2025, 14:03Küttesüsteemides saab ka külmumiskindlat agensi kasutada (nt. glükooli baasil).piprakurk kirjutas: 02 Dets 2025, 13:51 ..kui südatalvel elekter peaks ära kaduma (mida juhtub tihti, asume liini lõpus, metsa sees, hajaasustuses), et siis külmuvadki need põrandakütte torud ära.
Vanal ajal kui midagi saada ei olnud ....
Kui kütteseadme tootja annab täpselt ette, et millist soojakandevedelikku võib tema seadmetes kasutada siis igasugu muu keemia lõpetab seadme garantii ja ei pruugi tagada seadme ootuspärast tööd.
Uurige näiteks, et kui palju maksab antifriisi tsirk.pump.
-
ping
- Ehituspenskar

- Postitusi: 6613
- Liitunud: 28 Jaan 2016, 10:35
- On tänanud: 120 korda
- On tänatud: 308 korda
Re: Abihoone küttelahendus
Lugemata postitus Postitas ping »
Mõistlik oleks ka sobiv (ca 1,5kW) elektrikaabel põrandasse panna, sest lisades hiljem päiksepaneelid katusele, on üle poole aasta sees soojem.piprakurk kirjutas: 02 Dets 2025, 14:42 Tuli veel selline uitmõte, et kui vett ei pane isse ja jääb õhk-õhk pump, siis võiks igaks juhuks, tuleviku tarbeks lasta põrandakontuur ka ikkagi paigaldada, kui nt mõne aasta pärast tekib ikkagi tahtmine pidevalt sooja sees hoida (või muutub ruumi kasutusotstarve), et siis saab õhk-vesi süsteemi paigaldada. ....
-
Vko
- Ehitusspets

- Postitusi: 649
- Liitunud: 20 Veebr 2024, 13:15
- On tänanud: 5 korda
- On tänatud: 18 korda
Re: Abihoone küttelahendus
Lugemata postitus Postitas Vko »
Pädev projekteerija suudabki hoone küttekulu öelda ja alles siis kui see on teada, saab millestki edasi rääkida, praegu unusta siinne mokalaat ära.piprakurk kirjutas: 02 Dets 2025, 13:51 Teisalt jälle on ÕÕ väidetavalt ca 50% kallim kui maasoojuspumba ja vesiküttega. Kui keegi suudaks täpselt arvutada mis on optimaalne, siis oleks eriti tore, eks pean otsima pädeva projekteerija.
-
EH.INS.
- Ehituspenskar

- Postitusi: 4241
- Liitunud: 29 Juul 2024, 10:56
- On tänanud: 1 korda
- On tänatud: 96 korda
Re: Abihoone küttelahendus
Lugemata postitus Postitas EH.INS. »
Ma ei ole nt siiani saanud vastust milleks on vaja kütta, mis min sisetemp, milleks vesi...
Missuguste õunte pealt siis midagi hindama peaks???
- pikk88
- Ehituspenskar

- Postitusi: 2358
- Liitunud: 15 Juun 2009, 21:11
- On tänanud: 50 korda
- On tänatud: 49 korda
Re: Abihoone küttelahendus
Lugemata postitus Postitas pikk88 »
Samas on reaalsus see, et siiamaani pole viie aasta jooksul kütmata hoones veel mitte ühtegi korda ära külmunud ämbris olev vesi . Ämber on asunud soojustamata betoonpõrandal. Mäletan, et esimesel talvel olin külmalaine ajal haigena nädal aega põetaja hoole all ning töökotta jõudes olin 100% kindel selles, et vesi külmunud kuid nii ei läinud. Siiamaani on kõige madalam temperatuur ruumis olnud 4 kraadi ruumi keskpaigas. Seda isegi sellel ajal, kui garaaziust asendas üks kiht õhukest tuuletõket. Esimesel talvel otsisin huvi pärast kas põrandal langeb temperatuur nulli või alla selle. Ei mäleta, et oleks sellist kohta tuvastada suutnud.
Ehitamise ajal said paigaldatud ka õhk-õhk soojuspumba torud seina ning pump ise vedeleb siiani kuuri all. Paigaldamiseni pole jõudnud, sest tõenäoliselt ei leiaks see eriti tihedat kasutust.
Veetrass on hoonesse paigaldatud ilma igasuguse lisasoojustuseta ja ootab ühendamist. Samuti on paigaldatud kraanikauss ja seda juba seepärast, et töökojas on puhaste kätega toimetamine võimalik vaid akna ääres istudes ja unistamisega tegeledes. Iga kord seepärast tuppa joosta, et näpud puhtaks saada on asjatu aja- ja energiakulu.
Külmakindlat kraani enda hoone seinale paigaldada pole plaanis, sest vooliku saab uksest või aknast igal hetkel välja panna, kui vett vaja väljaspool hoonet tarvitada.
Töökoja põrandale põrandakütte torusid ei paigaldanud, sest see oleks alustuseks eeldanud põranda soojustamist, mis tundus mulle asjatu lisakulutusena. Samuti oleks see muutnud nõrgemaks põrandasse valatud betoonplaadi, mida oleks pidanud paksemaks tegema ning see tundus samuti asjatu lisakuluna. Siiani on 10 cm paksune armeeritud plaat oma eesmärgid ära täitnud.
-
Kalvis
- Ehituspenskar

- Postitusi: 11638
- Liitunud: 03 Veebr 2008, 14:02
- On tänanud: 4 korda
- On tänatud: 336 korda
Re: Abihoone küttelahendus
Lugemata postitus Postitas Kalvis »
Vett võib sinna ikka projekteerida ja panna kuid nii, et kui hoonet ei küta talvel siis ei külmu kraan ära. N. trass on põrandas, põrandas on luuk kus siis keerad talveks mineva veetoru kinni ja lased tühjaks. Kui kastmiseks siis veel lihtsam, tood toast painduva voolikuga majja (maaseest). Toas on kraan, vooliku otsas abihoones on lpastikkraan, vee võib isegi voolikusse unustada.piprakurk kirjutas: 02 Dets 2025, 13:51 Vastan mõnele küsimusele, mis siin tõstatud. Vee osas - oli plaan tuua peamajast veetrass ja teha väljaviik (külmumiskraaniga), et kasutada seda siis kastmiseks, survepesururiga toimetamiseks, ka õues kätepesuks. Lugedes kõiki neid kommentaare, tundub, et tegelikult võiks abihoonesse vett mitte tuua (kastmisveele ja pesurile saab ka vett nt peamaja väljaviigust või siis sauna/tünni juurest, kus ka veetrass olemas.
Teisalt jälle on ÕÕ väidetavalt ca 50% kallim kui maasoojuspumba ja vesiküttega.
abihoonega pead ikka plaani täpselt paika panema. Kas kütad 24/7 ja saad korralikud lisakütte kulud või teed nii, et hoone on talvel enamus aja kütmata. Siis sobib õhk-õhk pump, mingi kamin jne. Sel juhul ära isegi plaani põrandakütet mis iganes, mahavisatud raha.
õhk-õhk on kõige soodsam SP. Ka saab seda väikseima nominaaliga mis just sobiks abihoonele.
- Ehitusfoorum
- ↳ Üldfoorum
- ↳ Ahjud, kaminad, korstnad
- ↳ Aiad, väravad
- ↳ Aknad, uksed
- ↳ Betoon ja betoonitooted
- ↳ Ehitustööriistad
- ↳ Ehitusmaterjalid
- ↳ Elekter, elektriseadmed
- ↳ Energiamärgis ja energiaaudit
- ↳ Fassaadide arutelu
- ↳ Katused, laed
- ↳ Hüdroisolatsioon
- ↳ Kaevud
- ↳ Konstruktsioonid, seinad
- ↳ Küttesüsteemid
- ↳ Palkmajad
- ↳ Projekteerimine, projektid
- ↳ Põrandad
- ↳ Puit ja puidutooted
- ↳ Restaureerimine
- ↳ Seadusandlus
- ↳ Soojustus, isolatsioon
- ↳ Saunad, dussiruumid, vannitoad, sanitaartehnika
- ↳ Siseviimistlus, värvid, plaatimistööd
- ↳ Ventilatsioon
- ↳ Veevarustus, kanalisatsioon, käimlad
- ↳ Vundamendid
- ↳ Naljanurk
- ↳ Arhiiv
- Ärifoorumid
- ↳ Otsin tööd
- ↳ Pakun tööd
- ↳ Ostu-müügifoorum
- ↳ Annan/võtan rendile
- ↳ Hinnapäring
