Aku paak soojuspumbale

küttesüsteemid, millega ja kuidas kütta
virgats
Uus kasutaja
Uus kasutaja
Postitusi: 43
Liitunud: 03 Juun 2015, 20:58
On tänanud: 1 korda

Aku paak soojuspumbale

Lugemata postitus Postitas virgats »

Kas see oleks halb mõte, kui õhk-vesi või maasoojuspumbaga akupaaki soojendada ainult öösiti öötariifi eest?
keemik
Ehitusveteran
Ehitusveteran
Postitusi: 1372
Liitunud: 16 Aug 2008, 19:33
On tänatud: 104 korda

Re: Aku paak soojuspumbale

Lugemata postitus Postitas keemik »

Pump peab töötama suurema võimsusega (tootma kaks korda rohkem sooja, sest päevaks peab ka ette kütma), seega COP langeb, ilmselt ei tasu ära. Või ostad üledimensioneeritud pumba, mis on aga kallim tunduvalt- seega, ei tasu taas ära.
ffs
külaline

Re: Aku paak soojuspumbale

Lugemata postitus Postitas ffs »

LIsaks veel öösel on reeglina oluliselt jahedam, mis kahandab kasutegurit veelgi.
virgats
Uus kasutaja
Uus kasutaja
Postitusi: 43
Liitunud: 03 Juun 2015, 20:58
On tänanud: 1 korda

Re: Aku paak soojuspumbale

Lugemata postitus Postitas virgats »

panen kõrva taha.
ffs
külaline

Re: Aku paak soojuspumbale

Lugemata postitus Postitas ffs »

Sealt võib kergesti kaduma minna, soovitaks kõrvade vahele. :grin: :lol:
virgats
Uus kasutaja
Uus kasutaja
Postitusi: 43
Liitunud: 03 Juun 2015, 20:58
On tänanud: 1 korda

Re: Aku paak soojuspumbale

Lugemata postitus Postitas virgats »

Hea nali!

Aga maasoojuspumbal on öösel sama kasutegur...
officer
Ehitusspets
Ehitusspets
Postitusi: 500
Liitunud: 19 Jaan 2014, 09:19
On tänanud: 19 korda
On tänatud: 5 korda

Re: Aku paak soojuspumbale

Lugemata postitus Postitas officer »

...mul jäi "ajaloolistel" põhjustel akupaak,0,8m3; põrandaküttesüsteemile vahele...katsetused näitasid, et süsteemi COP veica paranes...kuna küttesüsteemi veemaht suurenes ja pumba käivituste arv vähenes(võibolla on see subjektiivne arvamus?)
Tegemist Õ/V pumbaga.
virgats
Uus kasutaja
Uus kasutaja
Postitusi: 43
Liitunud: 03 Juun 2015, 20:58
On tänanud: 1 korda

Re: Aku paak soojuspumbale

Lugemata postitus Postitas virgats »

Taaselustaks vana teema.
Kas praeguste elektrihindade juures juba on mõistlikum öösiti akupaaki soojendada ja päeval ÕV-soojuspump välja lülitada?
Ac457765
Ehitusguru
Ehitusguru
Postitusi: 988
Liitunud: 16 Jaan 2021, 22:47
On tänanud: 7 korda
On tänatud: 33 korda

Re: Aku paak soojuspumbale

Lugemata postitus Postitas Ac457765 »

Ei ole ju nii, et öösel alati on odav ja päeval alati on kallis. :roll:
Coolhouse
Ehitusveteran
Ehitusveteran
Postitusi: 1082
Liitunud: 12 Sept 2008, 14:19
On tänanud: 1 korda
On tänatud: 30 korda

Re: Aku paak soojuspumbale

Lugemata postitus Postitas Coolhouse »

virgats kirjutas: 07 Sept 2022, 17:39 Taaselustaks vana teema.
Kas praeguste elektrihindade juures juba on mõistlikum öösiti akupaaki soojendada ja päeval ÕV-soojuspump välja lülitada?
Ära päris välja lülita st pinge jäta peale kuid nupust lülita välja (standby ehk ooteasend). Muidu võib juhtuda et "järgmisel hommikul enam ei mäleta mis õhtul juhtus" - mälu auk.
Loomulikult võid kütta siis kui elekter soodsama hinnaga ja kallima hinnaga mitte kütta, eriti sügisel ja kevadel.
Ise pead otsustama millal ja palju kütad, mõttetu on arvata et mõni tark, robot jne oskaks arvata kuidas sinu maja kütta.

Muidugi kui keegi suudab soovitada mõnda börsihinda järgivat seadet siis oleks huvitav. Ehk algoritm peaks siis näiteks arvestama iga maja seadistust (hilistumine, võimalik küttegraafik), homne elektrihind, nt nelja päeva ilmateade, tuule suund ning tugevus.
Õhk-vesi soojuspumbad, külmseadmed .
Müük, hooldus. info@coolhouse.ee
Kalvis
Ehituspenskar
Ehituspenskar
Postitusi: 11614
Liitunud: 03 Veebr 2008, 14:02
On tänanud: 4 korda
On tänatud: 335 korda

Re: Aku paak soojuspumbale

Lugemata postitus Postitas Kalvis »

Vastus on lihtne - vaata õhksoojuspumba COP väärtuseid erinevatel välistemperatuuridel. korrutad COP väärtuse kwh hinnaga läbi ja saadki rahalised numbrid.
martitam
Uus kasutaja
Uus kasutaja
Postitusi: 16
Liitunud: 20 Okt 2018, 00:05
On tänanud: 1 korda
On tänatud: 1 korda

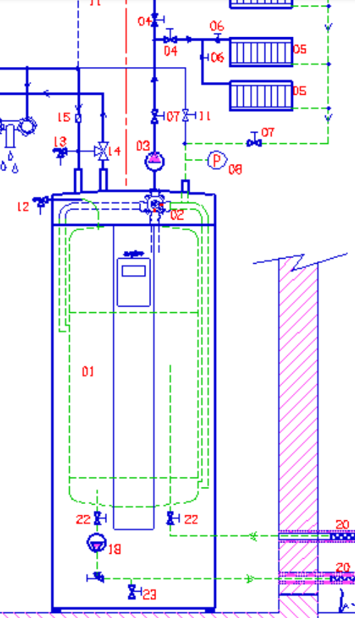
Õhkvesi soojuspump akupaak mahupaak

Lugemata postitus Postitas martitam »

80m2 maja põrandaküttega. Varem küttis SANYO CO2 monoplokk, millest monoplokk ära visati ja ainult "siseosa" alles jäi.
Siseosa koosneb 200L (aku)paak, 4T segamissõlm, automaatika.
Mõned aastad tagasi paigaldati split ÕV, mille siseosa ühendati SANYO mahupaagiga. Soojuspump kütab vett SANYO akupaaki ja SANYO automaatika saadab sealt küttevee põrandasse edasi vastavalt vajadusele.
Kuuris vedeleb üks 200L boiler, mille mõtlesin kuskile vahele pookida ja panna ÕV elektrihinna järgi tööle. Kuna asjad tasuta käes, siis ilmselt mingi säästu sellest 200L lisamahust ikka saaks.
Küsimus on nüüd selles, et kuhu oleks kõige mõistlikum see vana boiler mahupaagina jadamisi vahele pookida?
Mõned pildid Sanyo siseosa kohta:
a2.png
a1.png
a3.png
Kasutaja avatar
Hiid
Ehituspenskar
Ehituspenskar
Postitusi: 4454
Liitunud: 30 Jaan 2005, 12:46
Asukoht: Tartu
On tänanud: 113 korda
On tänatud: 88 korda

Re: Aku paak soojuspumbale

Lugemata postitus Postitas Hiid »

200 l pole miski paak, 2000 juba midagi on.
Mis effekti sa saavutad, kui viskad supipotti lusikatäie kuuma vett?
Coolhouse
Ehitusveteran
Ehitusveteran
Postitusi: 1082
Liitunud: 12 Sept 2008, 14:19
On tänanud: 1 korda
On tänatud: 30 korda

Re: Aku paak soojuspumbale

Lugemata postitus Postitas Coolhouse »

Sanyo CO2 tuli müüki kuskil 25 aastat tagasi. Vahepeal on asjad muutunud.
Kütad vee paagis ca 50C ja siis segad jahedama veega et saada soojust põrandaküttele.
Enam nii ei tehta. Sul pole mõtet teha soojuspumbaga soojemat vett kui 30..35 C ja sealt tulebki kokkuhoid. Soojuspump peab vähem pingutama ning kasutegur tuleb ca 20% parem.
Tänapäeva õhk-vesi soojuspumbad on võimalusega kütta maja ja vajadusel eraldi paagis tarbevett.
Selleks on soojuspumbas olemas või lisatakse ümberlülitav elektriline ventiil. Nt ventiil lülib 15 minutiks ringi ja selle aja jooksul soojendatakse tarbevee paaki 50? kraadini.
Siin praegu võib see Sanyo paak jääda tarbeveele.
Kütteringi võiksid lisada mingi puhverpaagi jne kuid mõistlikum oleks omandada teadmisi koolis kui kuskil veebiavarustes (tulemus võib olla korralik häving) . Seega jäta asi rahule ja küsi sealt kus kohast soojuspumba said kuidas skeemi paremaks teha.
Õhk-vesi soojuspumbad, külmseadmed .
Müük, hooldus. info@coolhouse.ee
Kalvis
Ehituspenskar
Ehituspenskar
Postitusi: 11614
Liitunud: 03 Veebr 2008, 14:02
On tänanud: 4 korda
On tänatud: 335 korda

Re: Aku paak soojuspumbale

Lugemata postitus Postitas Kalvis »

Põrandakütte pealejooksule või vaata skeeme kus on puhverpaak.
martitam
Uus kasutaja
Uus kasutaja
Postitusi: 16
Liitunud: 20 Okt 2018, 00:05
On tänanud: 1 korda
On tänatud: 1 korda

Re: Aku paak soojuspumbale

Lugemata postitus Postitas martitam »

Aitäh, Coolhouse ja Kalvis!
xil
Ehitusguru
Ehitusguru
Postitusi: 840
Liitunud: 10 Apr 2014, 11:08
On tänatud: 13 korda

Re: Aku paak soojuspumbale

Lugemata postitus Postitas xil »

Mul oli 2m3 akupaak juba tahkeküttekatla tõttu olemas ja panin õ/v soojuspumba katlaga paralleeli. Tagasivooluklapid muidugi mõlemale vahele, et sp vesi ei käiks läbi katla ning et katla vesi ei käiks läbi sp soojusvaheti. Sp küttegraafikus panin sp hommikuse ja õhtuse tipptunni ajaks seisma, kuna siis on elekter sageli kordades kallim, kui muul ajal. Tubade termostaatide programmis lülisin põrandakütte ööseks välja, kuna jahedas on justkui parem magada. Nii sp töötab öösel, kui elektri hind on odav, aga toad on soojad, vastupidi, päeval.
Vasta